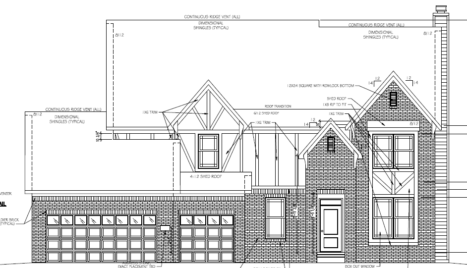
make a 3d elevation of home on a wooded lot that slopes down to the rear and has landscaping that doesn t get in the way of the driveway shingles are black garage door is black gutters are black windows with grids are black siding is functional gray color trim is snowbound color brick is coral blend color by brickcraft