archsynth
Sign Up
Open main menu
Image to 3d model
Compare
Testimonials
Contact us
Log in
→
Signup
Archsynth generation
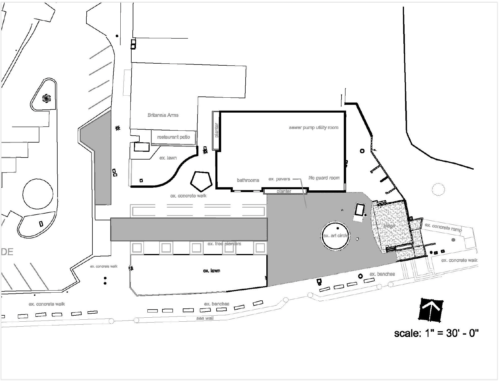
Input image
Copy Prompt
i would like to make this site plan into a beautiful site plan that looks like a landscape architect has created it lots of trees and concrete pathways
Landscape
strength 75
seed 10
Start Creating Renders Now
Related Posts
Start Creating Renders Now
View more