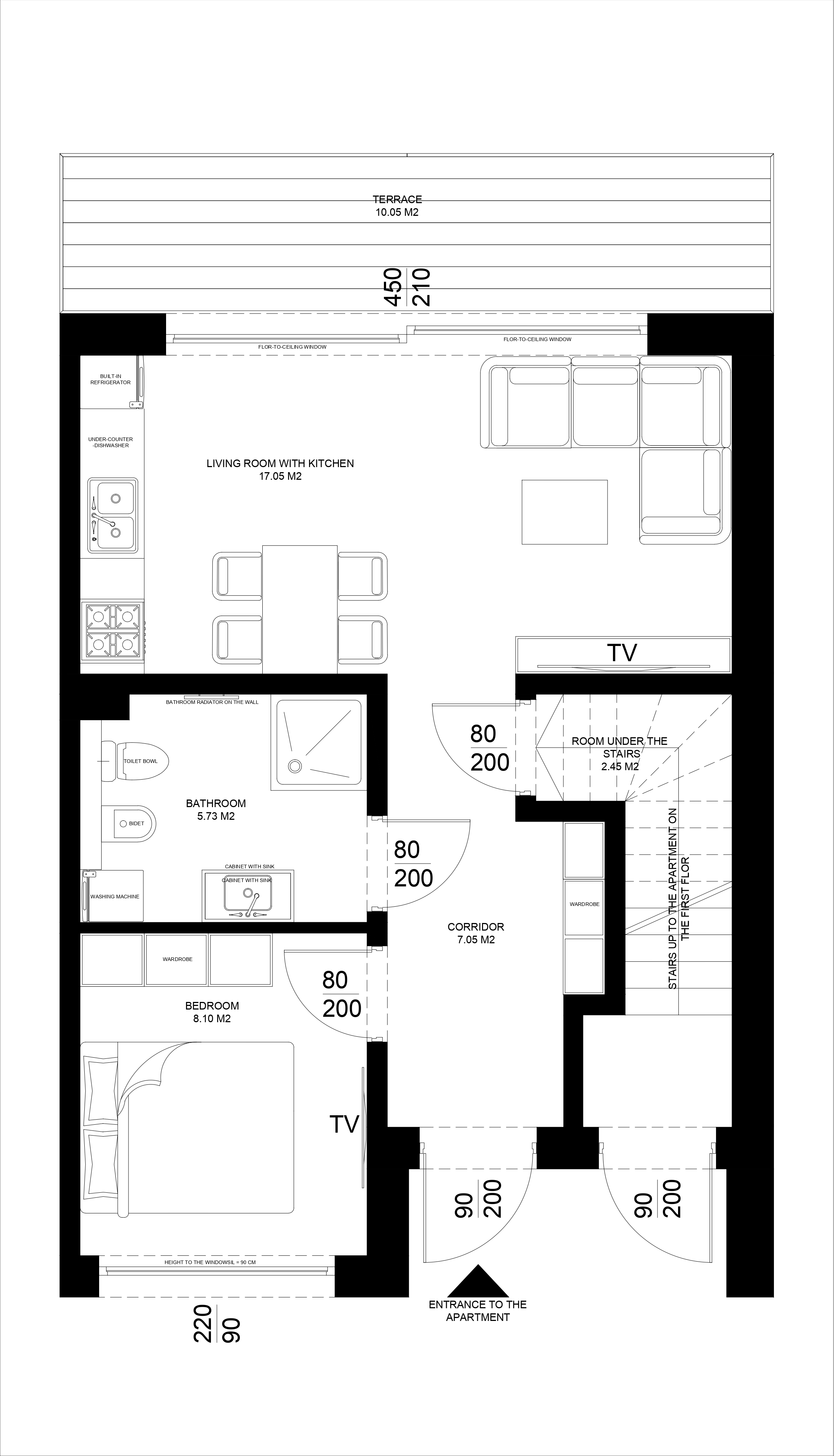
convert this floor plan into a realistic isometric 3d view of a full house show the space from an elevated angle with furniture walls and details visible zachowaj uk ad cian nie dodawaj adnych barirek okien i drzwi mieszkanie w stylu loft usu napisy widok pod k tem patrzenia use the same furniture as shows on the plan do not change the orientation of the floorplan