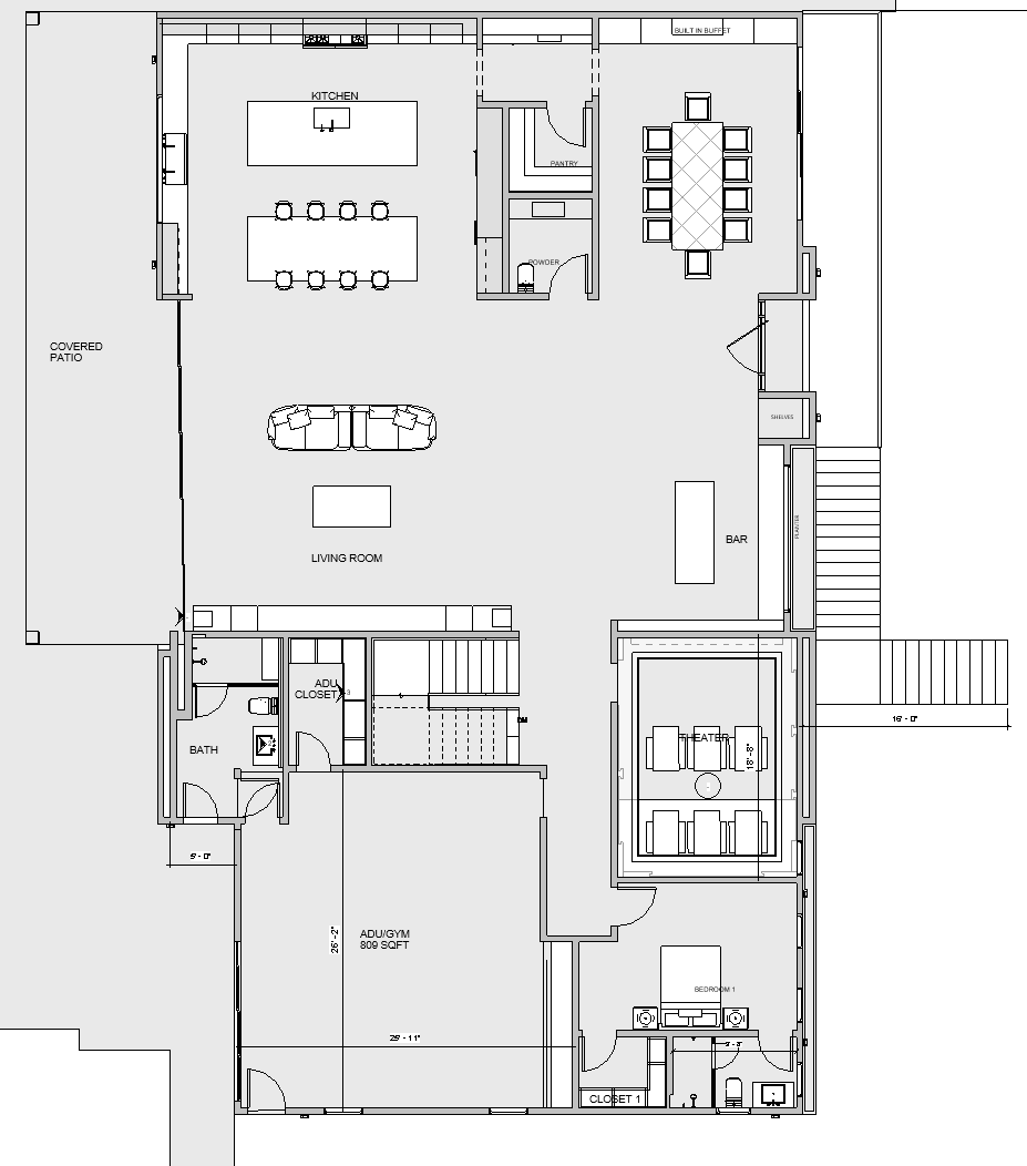
convert this floor plan into a realistic isometric 3d view of a full house show the space from an elevated angle with furniture walls and details visible high end warm organic modern mediterranean villa style with walnut cabinetry throughout taj mahal quartzite surfaces darker oak flooring plaster walls sculptural stone forms and soft ambient lighting calm tonal and luxurious use the same furniture as shows on the plan do not change the orientation of the floorplan