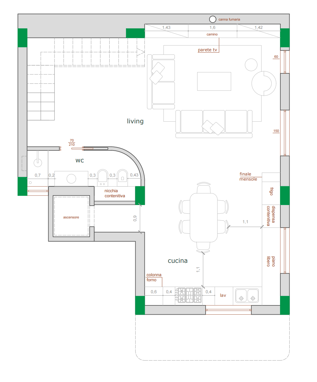
convert this floor plan into a realistic isometric 3d view of a full house show the space from an elevated angle with furniture walls and details visible questa una taverna in stile rustico moderno sotto la scala c un mobile contenitivo il camino deve essere a legna ma con struttura moderna in cartongesso use the same furniture as shows on the plan do not change the orientation of the floorplan