archsynth
Sign Up
Open main menu
Image to 3d model
Compare
Testimonials
Contact us
Log in
→
Signup
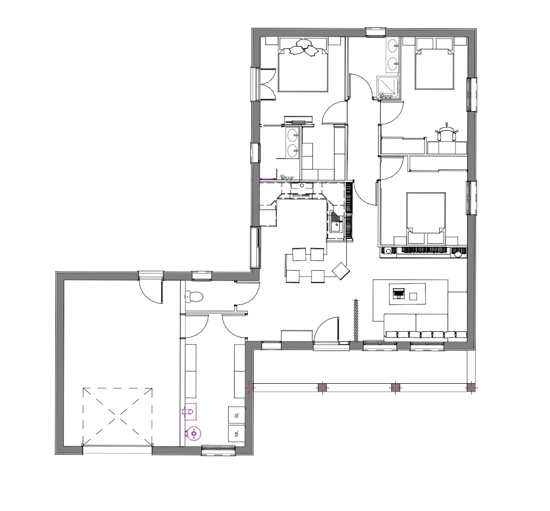
Archsynth generation
Input image
Copy Prompt
transforme ce plan sans le modifier en vu 3d sans toit ni plafond
Freestyle
strength 75
seed 10
Start Creating Renders Now
Related Posts
Start Creating Renders Now
View more