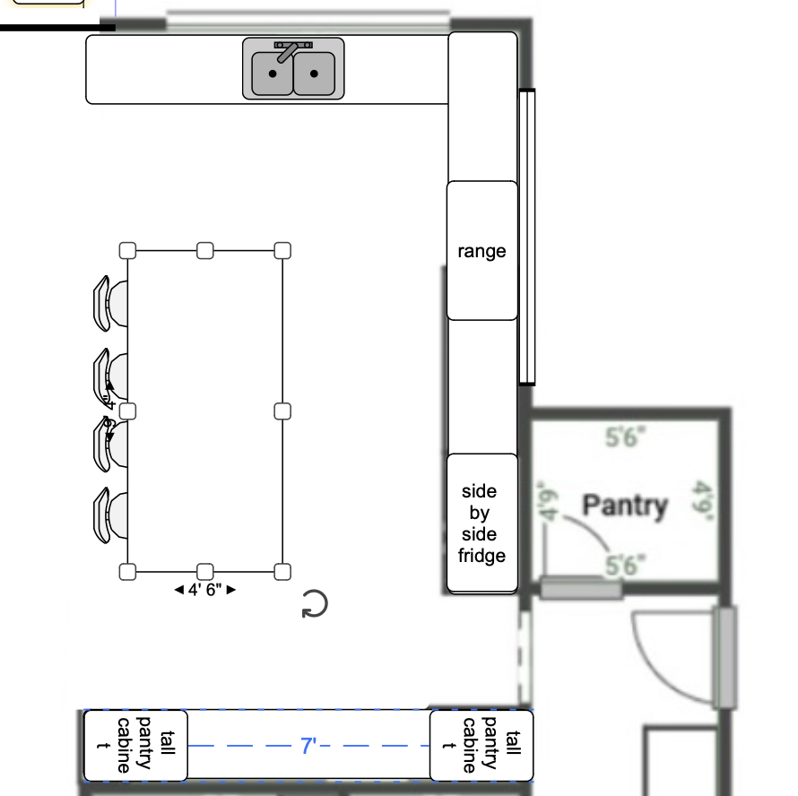
convert this floor plan into a realistic isometric 3d view of a kitchen show the space from an elevated angle with furniture walls and details visible a traditional white kitchen based on the above plan use the same furniture as shows on the plan do not change the orientation of the floorplan