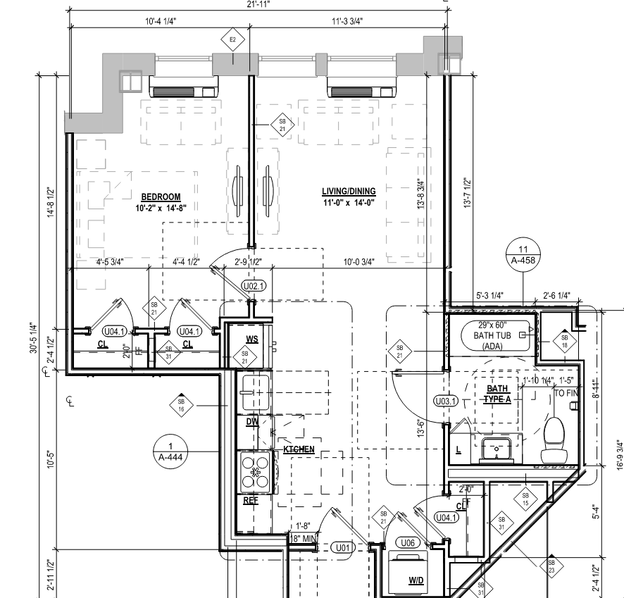
convert this floor plan into a architectural isometric 3d view of a full house show the space from an elevated angle with furniture walls and details visible this apartment should be light and bright with light oak flooring and a pale grey kitchen cabinet and stainless steel fixtures and appliances use the same furniture as shows on the plan do not change the orientation of the floorplan