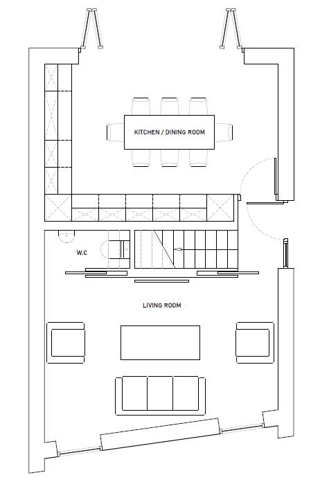
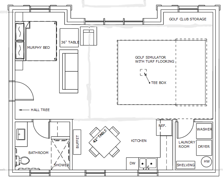
convert this floor plan into a realistic isometric 3d view of a full house show the space from an elevated angle with furniture walls and details visible create rendered aerial view of floor plan in cottage style with warm neutral color scheme and medium warm wood flooring bedroom has white king murphy bed with full height bookcases above and below bed along left wall living area has white sofa white accent pillows with colorful geometric print white club chair 36 accent table and white drapes with blue geometric print at 3 windows golf simulator has green turf flooring inside rectangle with wood flooring around rectangle projection screen at right wall and golf clubs in front of window at the top right of plan bathroom has white marble tile flooring and countertop shower with glass enclosure and storage niche kitchenette has 42 table with upholstered chairs and wood buffet white cabinetry in l shaped configuration with white marble countertops and stainless steel refrigerator at top end of cabinetry laundry room has side by side washer and dryer with cabinetry above storage shelving along bottom wall and water heater in bottom right corner use the same furniture as shows on the plan do not change the orientation of the floorplan