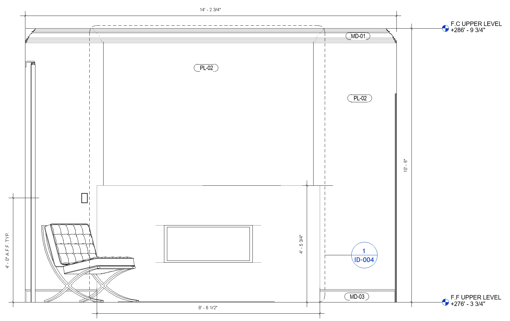
plaster on the top portion of the fireplace wall the bottom portion of the fireplace is beige marble rounded edges and interiors