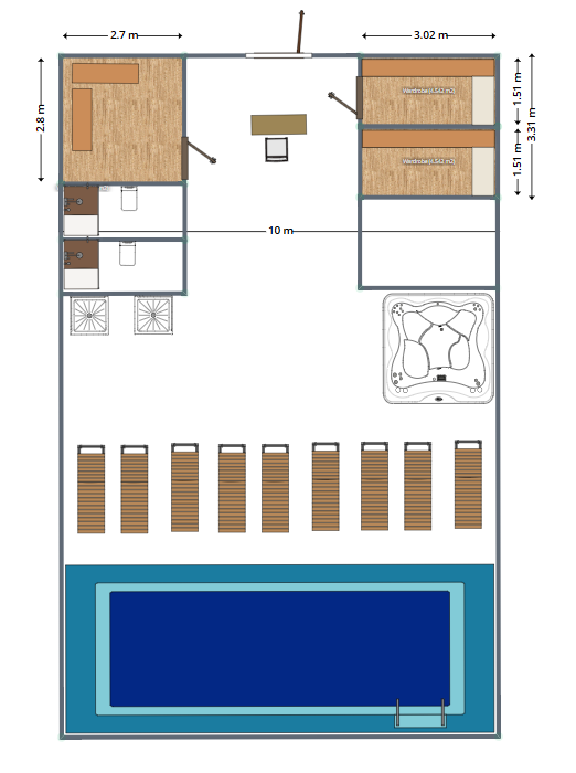
convert this floor plan into a realistic isometric 3d view of a full house show the space from an elevated angle with furniture walls and details visible in stanga sus fa sauna de 6 8 persoane in dreapta 2 vestiare femei si barabti in dreapta sauna uscata 3d minimalist use the same furniture as shows on the plan do not change the orientation of the floorplan