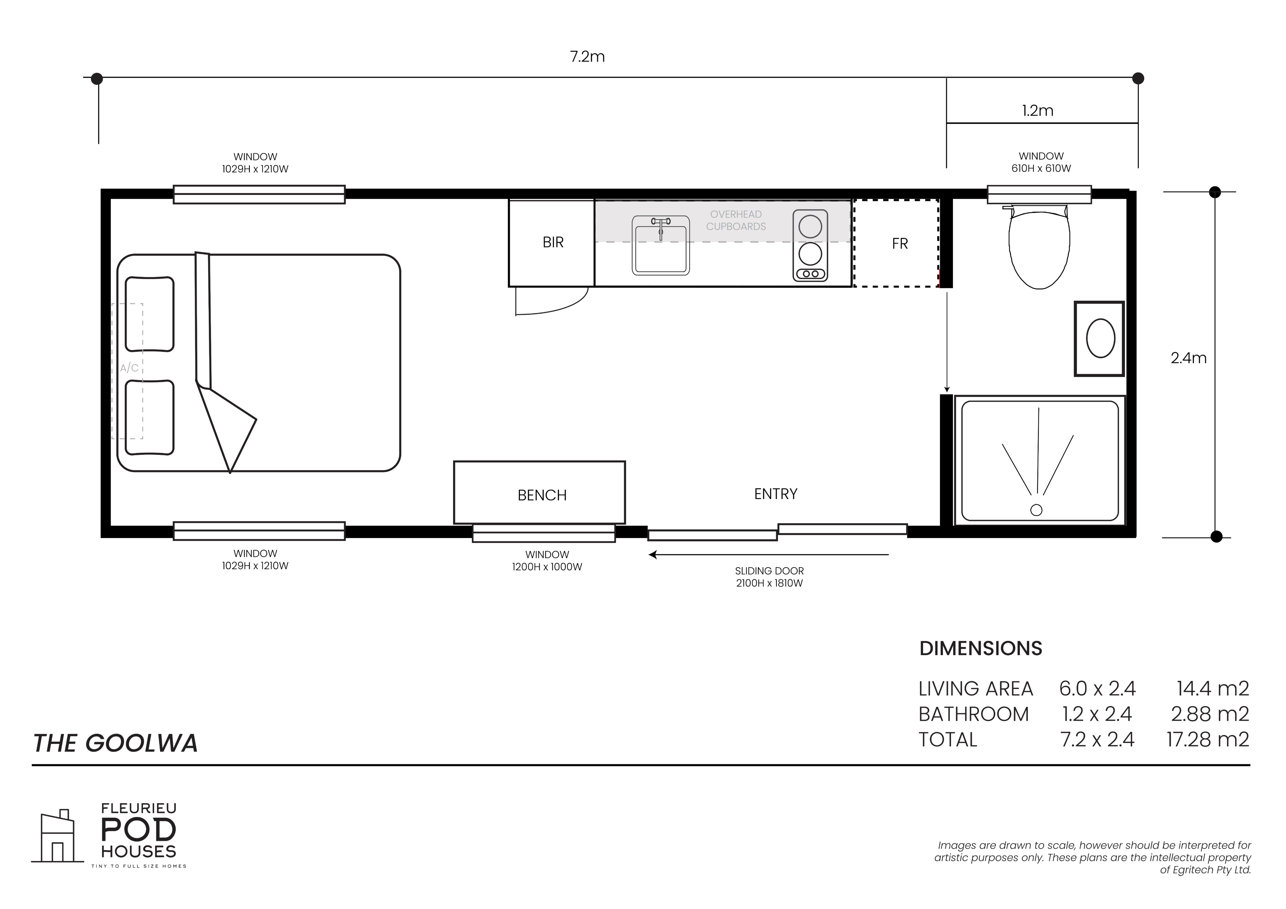
you are given a hand drawn sketched or informal floor plan possibly uneven lines pencil pen or a photo of a sketch recreate it as a polished client ready 2d architectural floor plan requirements preserve layout room count adjacency door and window locations and overall proportions as faithfully as possible do not invent major new rooms or change circulation unless the sketch is unreadable in that case minimally clarify output is strictly top down 2d plan view not isometric not perspective crisp linework consistent wall thickness standard architectural symbols for doors and windows where visible clean white or very light background subtle gray fills optional for readability remove sketch noise smudges shadows paper texture and photo artifacts optional readable room labels where they help the client keep typography simple and professional no decorative 3d no photorealistic rendering this should look like a professional plan sheet suitable for a client meeting