archsynth
Sign Up
Open main menu
Image to 3d model
Compare
Testimonials
Contact us
Log in
→
Signup
Archsynth generation
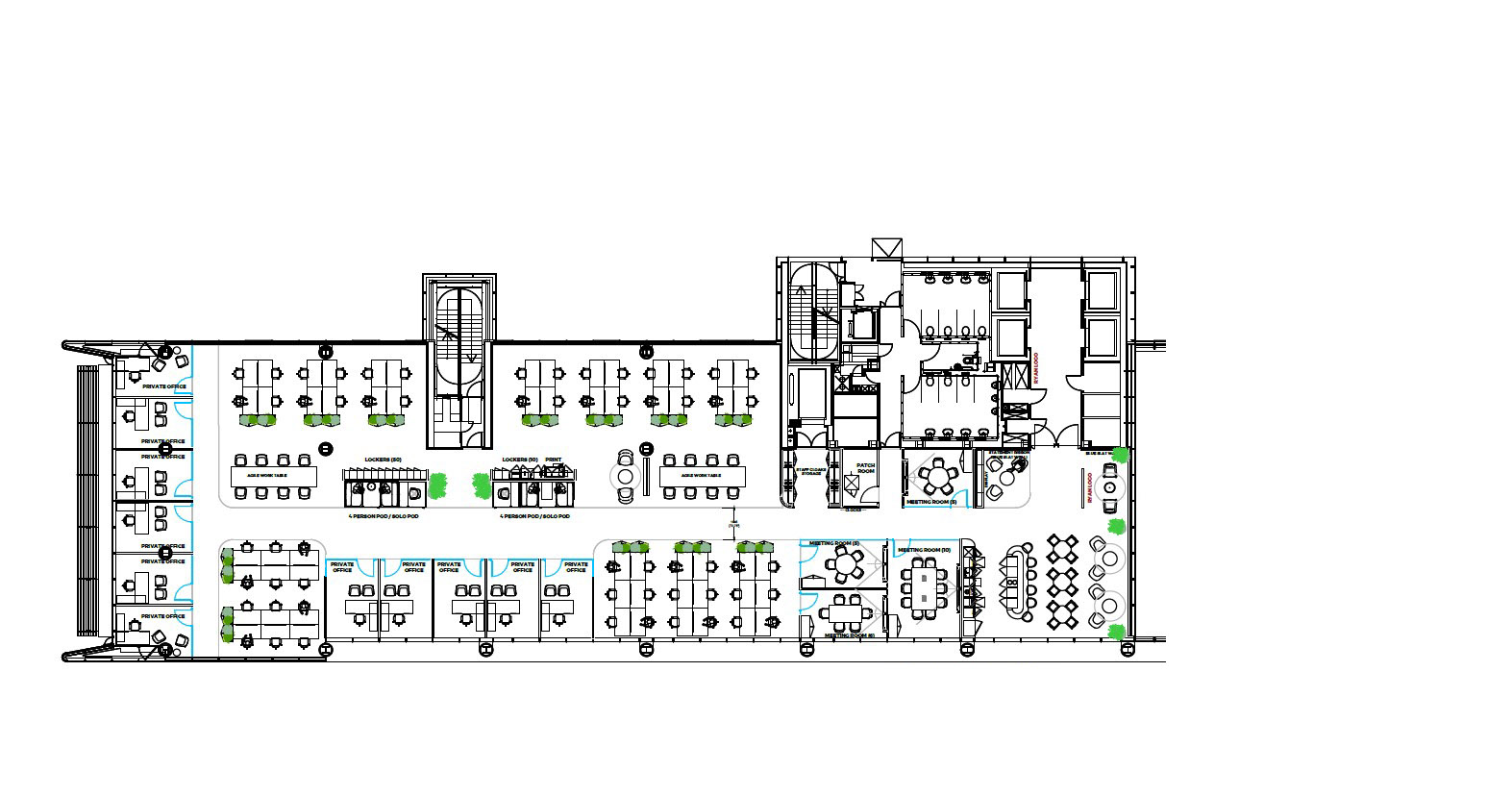
Input image
Copy Prompt
create a 3d floorplan image from the drawing provided add timber floors and carpets and change chairs desks and planters to realistic versions create real life versions of the kitchen areas island and dining areas add rugs where shown
Freestyle
strength 75
seed 10
Start Creating Renders Now
Related Posts
Start Creating Renders Now
View more