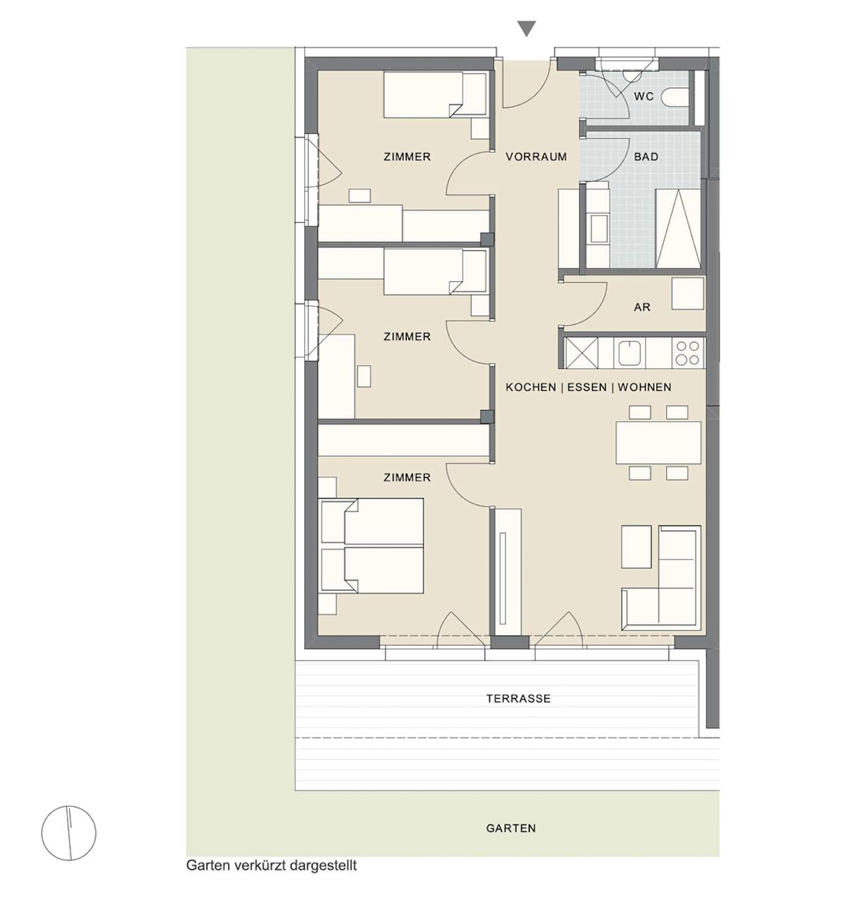
generate a 3d orthographic top down floor plan based on a 4 room apartment layout left side contains three bedrooms with light wood flooring right side features a large open plan living dining kitchen area top right includes a separate wc and a bathroom with grey tiling bottom of the plan features a large horizontal wooden terrace transitioning into a green garden use neutral tones beige white grey with realistic textures and soft ambient lighting