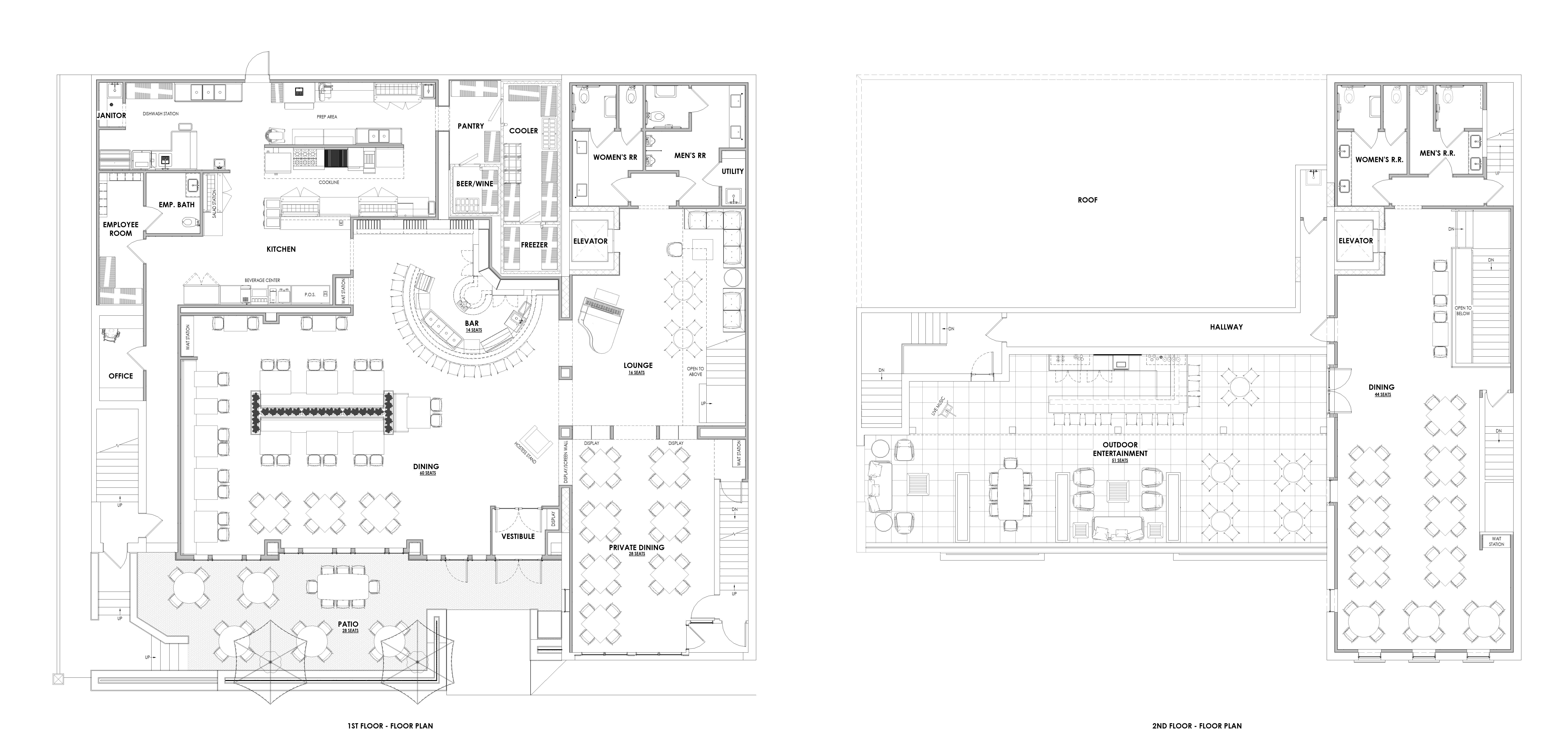
convert this floor plan into a realistic isometric 3d view of a full house show the space from an elevated angle with furniture walls and details visible convert this architectural restaurant floor plan into a clean isometric 3d floor plan diagram strict maintain the exact geometry wall locations room sizes bar configuration kitchen layout seating arrangements stairs doors and windows exactly as shown do not redesign move or reinterpret any elements use the same furniture as shows on the plan do not change the orientation of the floorplan