archsynth
Sign Up
Open main menu
Image to 3d model
Compare
Testimonials
Contact us
Log in
→
Signup
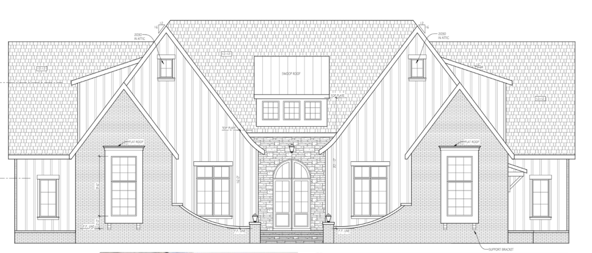
Archsynth generation
Input image
Mood Board
Copy Prompt
exterior shot
Mood Board
strength 75
seed 6533
Start Creating Renders Now
Related Posts
Start Creating Renders Now
View more