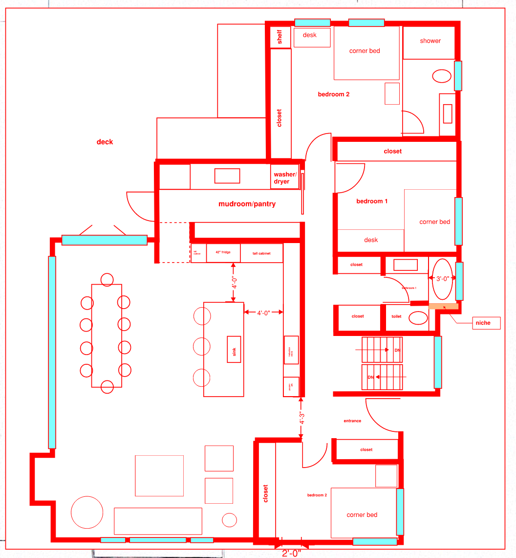
convert this floor plan into a modern isometric 3d view of a full house show the space from an elevated angle with furniture walls and details visible create an isometric model plan to showcase floors european white oak bathrooms tile use the same furniture as shows on the plan do not change the orientation of the floorplan