archsynth
Sign Up
Open main menu
Image to 3d model
Compare
Testimonials
Contact us
Log in
→
Signup
Archsynth generation
Input image
Copy Prompt
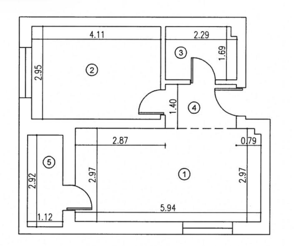
numarul 1 este bucatarie living numarul 2 este dormitor numarul 3 este baie numarul 4 este hol numarul 5 este balcon
Maintain Colors (Precision)
strength 75
seed 8203
Start Creating Renders Now
Related Posts
Start Creating Renders Now
View more