archsynth
Sign Up
Open main menu
Image to 3d model
Compare
Testimonials
Contact us
Log in
→
Signup
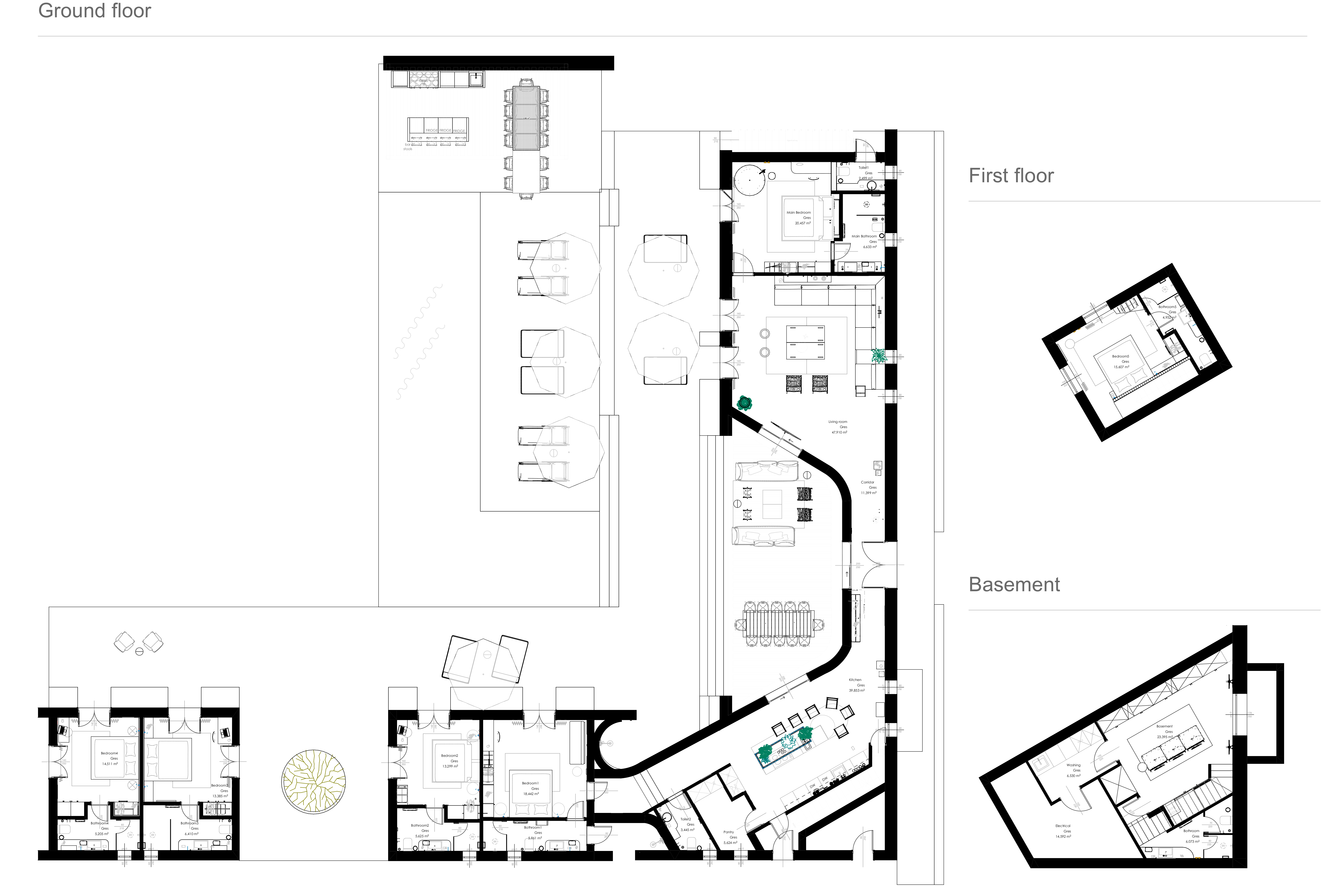
Archsynth generation
Input image
Copy Prompt
enhance this axonometric architectural drawing by adding a subtle 3d effect and realistic shadows no color preserve exact geometry layout linework proportions text and all elements do not move remove or redesign anything
Maintain Colors (v2)
strength 75
seed 10
Start Creating Renders Now
Related Posts
Start Creating Renders Now
View more