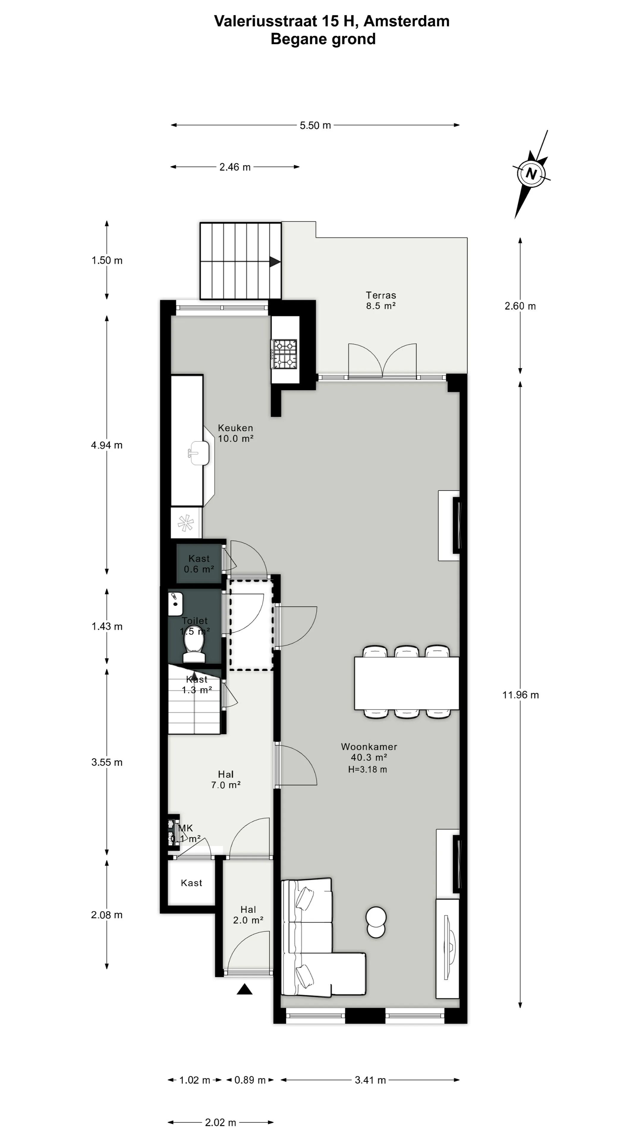
redesign the ground floor layout based on the uploaded floor plan add a second staircase on the left side near the kitchen replacing the current cabinets and sink create a kitchen layout with a central island positioned in front of the terrace doors oriented toward the outdoor view place tall storage cabinets along the right wall from the island to the living area keep the dining table in the center of the room and the living area in its original front position add a glass door between the hallway and the main space include built in cabinets with clean lines similar to the reference photos using warm wood tones beige and bronze finishes incorporate floor to ceiling curtains integrated lighting and a refined modern luxury atmosphere use the color palette from mer interior concepts soft beige light sand warm brown bronze and dark wood maintain realistic scale and correct spatial proportions