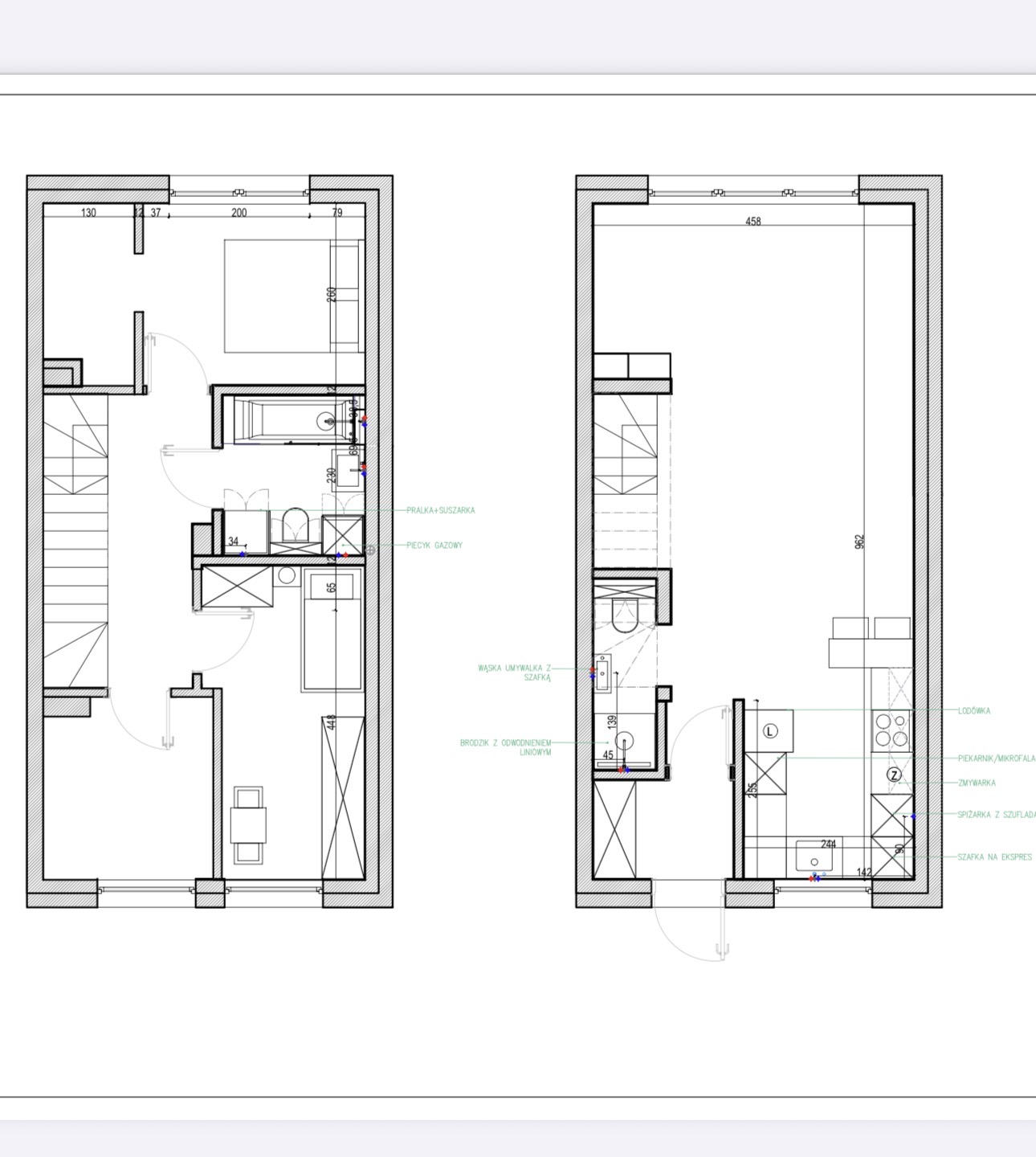
i ground floor day zone open space 1 entrance vestibule lighting linear led profile in the ceiling low level led strip in the wardrobe plinth triggered by a motion sensor smart control master switch leave home button by the door to turn off all lights and lower blinds simultaneously outlets 1 general purpose outlet at 110 cm height e g for a cordless vacuum base 2 small bathroom under stairs lighting ceiling ip65 spotlight mirror backlight led smart feature subtle under cabinet night light activated by a motion presence sensor low brightness for nighttime use outlets 1 ip44 outlet near the narrow sink 3 kitchen lighting magnetic track lighting system on the ceiling allows flexible positioning of spotlights pendants high power led strips under upper cabinets outlets hidden smart pop up retractable sockets integrated into the kitchen countertop min 2 sets to keep the backsplash clean 3 phase power supply 400v for the induction hob on the peninsula dedicated circuits for built in appliances refrigerator dishwasher oven microwave tower 4 living room dining room lighting dimmable pendant light over the dining table ambient led cove lighting in the living area divided into relax and dinner smart scenes outlets media tv wall concealed in wall cable management tube invisible cables 4 power outlets rj45 lan tv antenna lounge area floorbox under the sofa containing 230v sockets and usb c ports for charging laptops phones without trailing cables automation power supply for electric exterior roller blinds integrated with a weather sunlight sensor smart home central touch panel hub on the main wall ii upper floor night zone 1 stairs hallway lighting low level wall recessed led step lights installed every few steps activated by motion sensors at the top and bottom of the stairs switches multi way cross switching for main ceiling lights 2 main bathroom laundry lighting central ip44 lighting dedicated lighting for the bathtub zone smart mirror power supply for mirror lighting and an anti fog heating pad laundry zone separate dedicated ip44 circuits for a washing machine and a dryer stacked configuration at 110 cm height boiler dedicated 230v outlet for the condensing gas boiler 3 master bedroom bedside zone integrated wall frames on both sides of the bed containing 230v outlet dual usb c ports goodnight switch turns off main lights and closes blinds wardrobe interior led lighting triggered by door contact sensors 4 office second bedroom workspace desk height media hub min 3x 230v outlets 2x rj45 ethernet ports for stable remote work lighting central ceiling point dedicated desk lighting outlet iii future proof infrastructure tech smart home ready main distribution board expanded with 30 extra din rail space for smart relays e g shelly loxone or knx modules climate control wiring for smart room thermostats in every room connected to the underfloor heating manifold actuators outdoor exterior ip65 weatherproof outlets on the terrace cat6 wiring at the front door for an ip video intercom heavy duty 5x6mm cable routed to the parking area garage for a future ev electric vehicle charging station wallbox