archsynth
Sign Up
Open main menu
Image to 3d model
Compare
Testimonials
Contact us
Log in
→
Signup
Archsynth generation
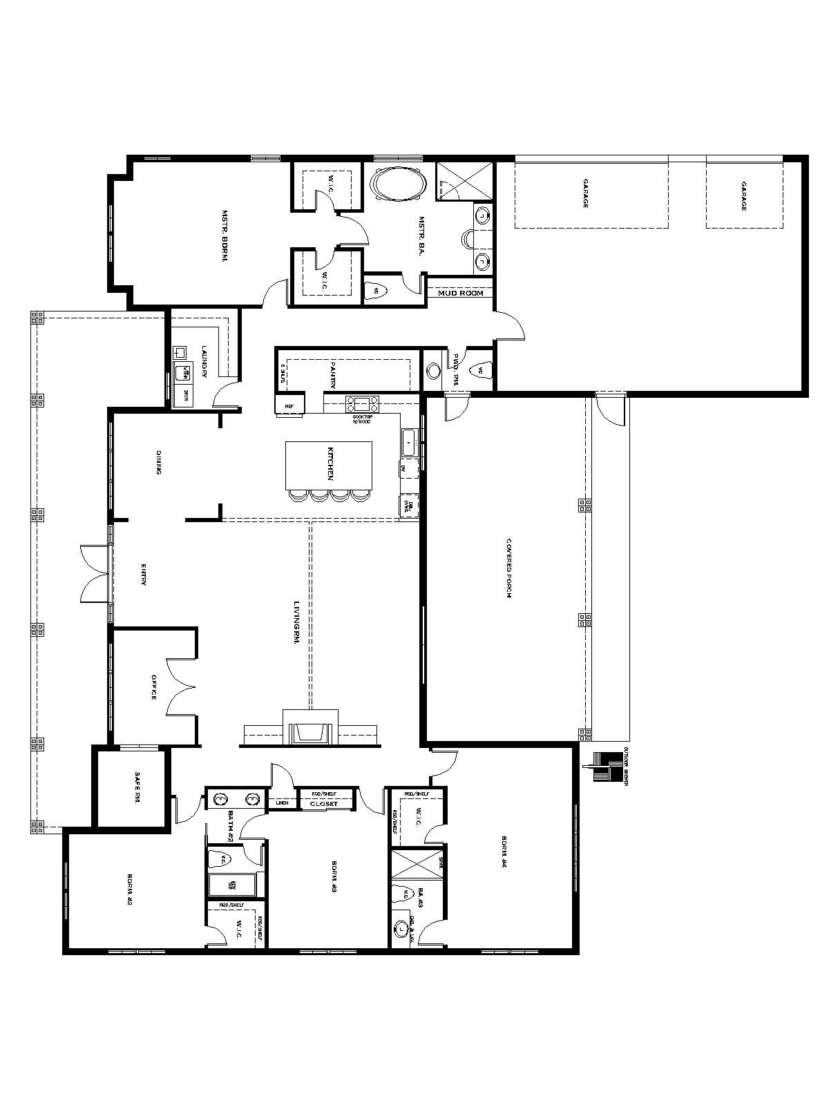
Input image
Copy Prompt
this is a top view of the floor plan convert this into realistic render
Maintain Colors (Precision)
strength 75
seed 2803
Start Creating Renders Now
Related Posts
Start Creating Renders Now
View more