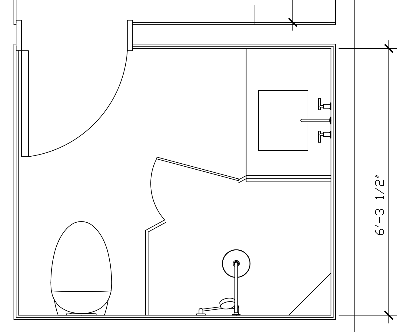
convert this 2d architectural floor plan into a realistic 3d interior perspective and show the perspecitiv view from the doorway use the floor plan as the base geometry show walls and lighting interior rendering from eye level camera view architecture