archsynth
Sign Up
Open main menu
Image to 3d model
Compare
Testimonials
Contact us
Log in
→
Signup
Archsynth generation
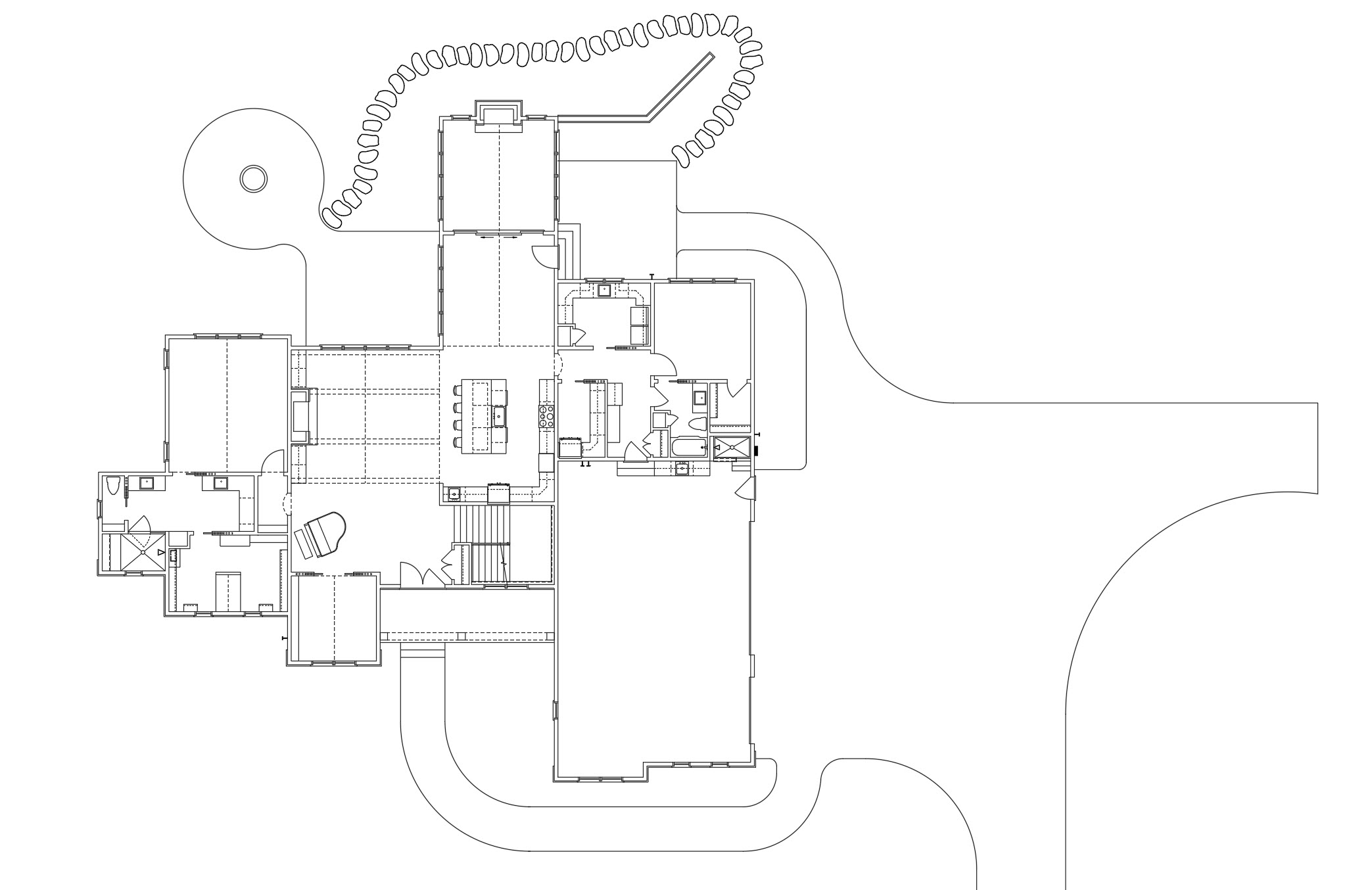
Input image
Copy Prompt
color rendering of floor plan
Maintain Colors (v2)
strength 75
seed 5818
Start Creating Renders Now
Related Posts
Start Creating Renders Now
View more