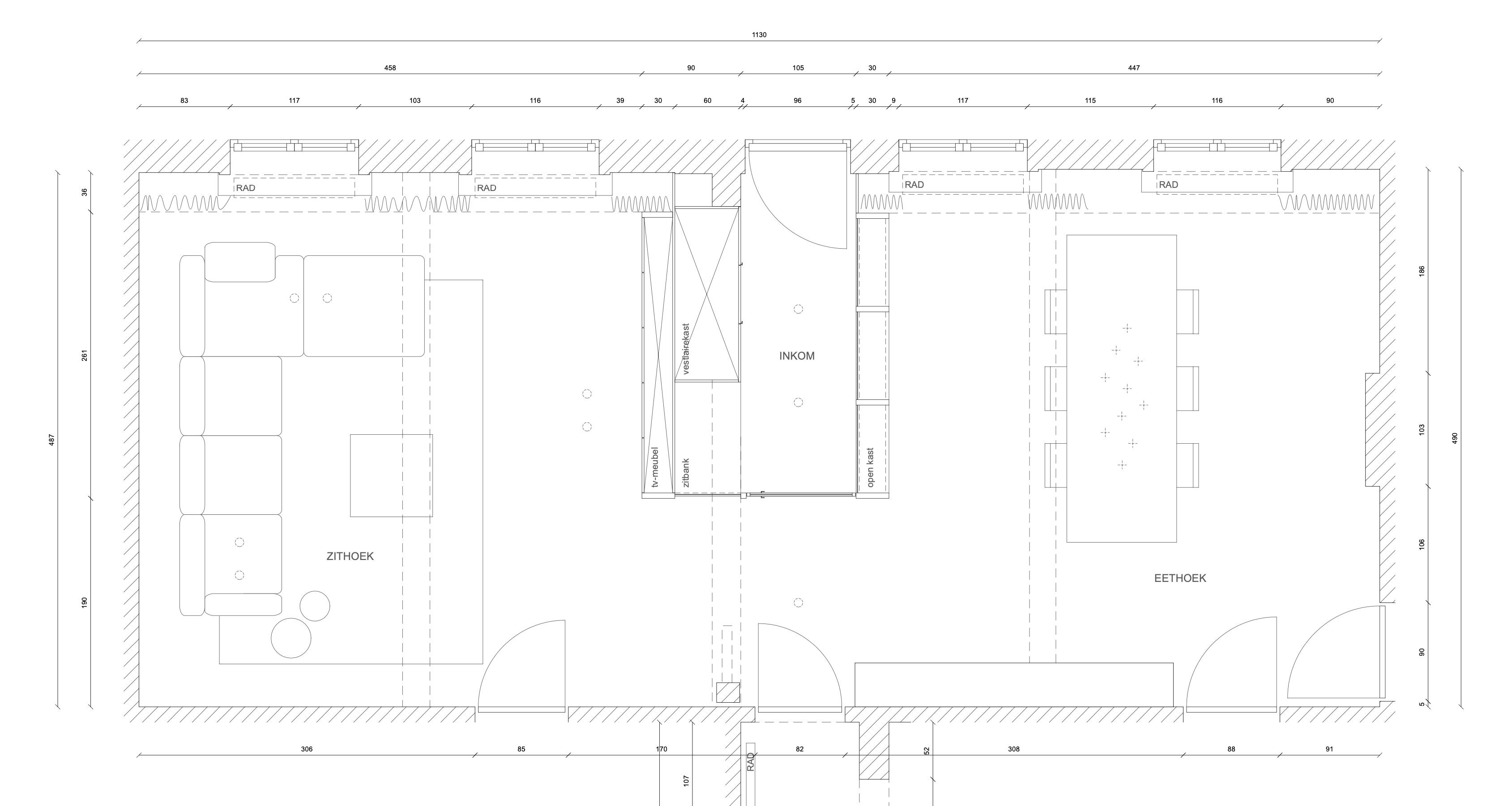
modernist interior shot i have a seating area that is 487 cm wide and 458 cm long along the long side there are two windows the first one is positioned 83 cm from the wall window width 117 cm followed by a wall section of 103 cm and then another window that is also 117 cm wide i will install wooden blinds in front of these windows for privacy in the seating area i would like to model a ferm sofa the catena sofa 3 meters long in boucl sand next to the sofa i would like to place the natural 9890 insert side table by ferm living additionally i would like to include the small round model from the ferm living pouf collection in faded velvet forest 3 against the left wall where there are no windows i would like to place two sector collections by ferm living in natural oak brass 2x a triple narrow unit with a sector desk mounted underneath in front of the sofa please add the distinct coffee table by ferm living in oak can i have an image of this seating are in this room architecture