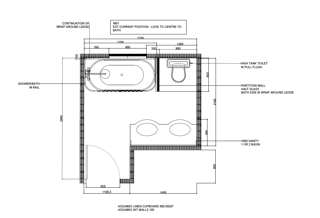
this floorplan has a freestanding clawed tub shower with a federation rail and curtain separated from a high tank toilet and chain by a nib wall the nib wall is half villaboard and tile with a textured glass insert framed out like a window there is a wainscoat capping around the bath to act as a shelf