archsynth
Sign Up
Open main menu
Image to 3d model
Compare
Testimonials
Contact us
Log in
→
Signup
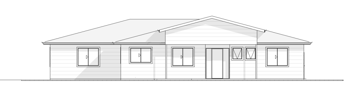
Archsynth generation
Input image
Copy Prompt
the building has a chromodeck roof sheeting the front door is a double glass sliding door there is a paved parking area in front of the building white weatherboard used on walls no cladding
Elevations
strength 75
seed 10
Start Creating Renders Now
Related Posts
Start Creating Renders Now
View more