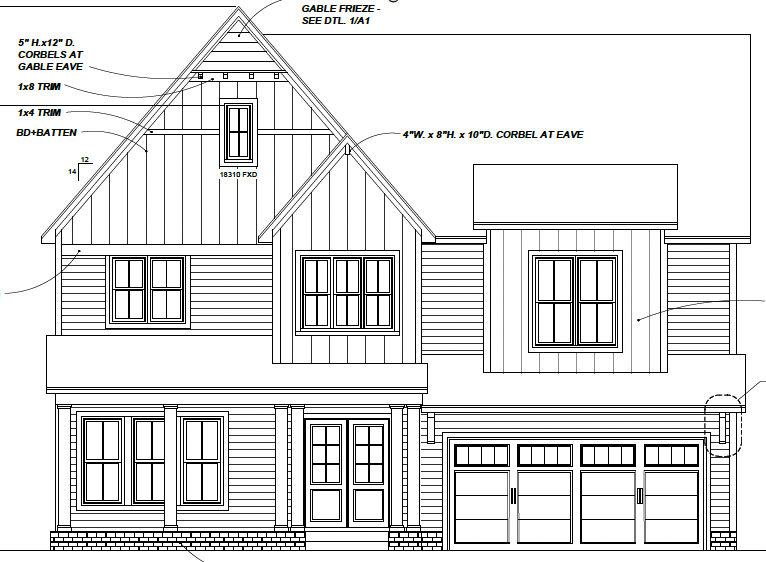
add exterior paint colors