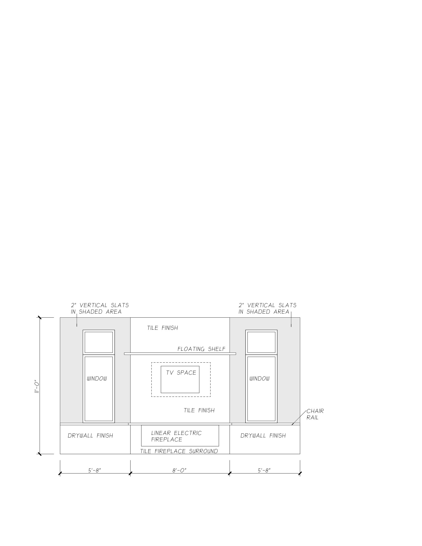
create an interior view of this wall the ceiling height is 11 the wall width is 19 4 the center section that is 8 wide protrudes forward 12 from the back wall from the chair rail to the floor the center section that is 8 wide protrudes forward 6 from the back wall from the ceiling to the top of the chair rail the back wall with the windows will have 2 vertical wood slats in a medium brown wood tone above the chair rail where shaded the floating shelf above the tv should be dark brown the finish around the tv and fireplace will be light marbled tile show an 80 tv with an ocean scene drywall finish under the window chair rail