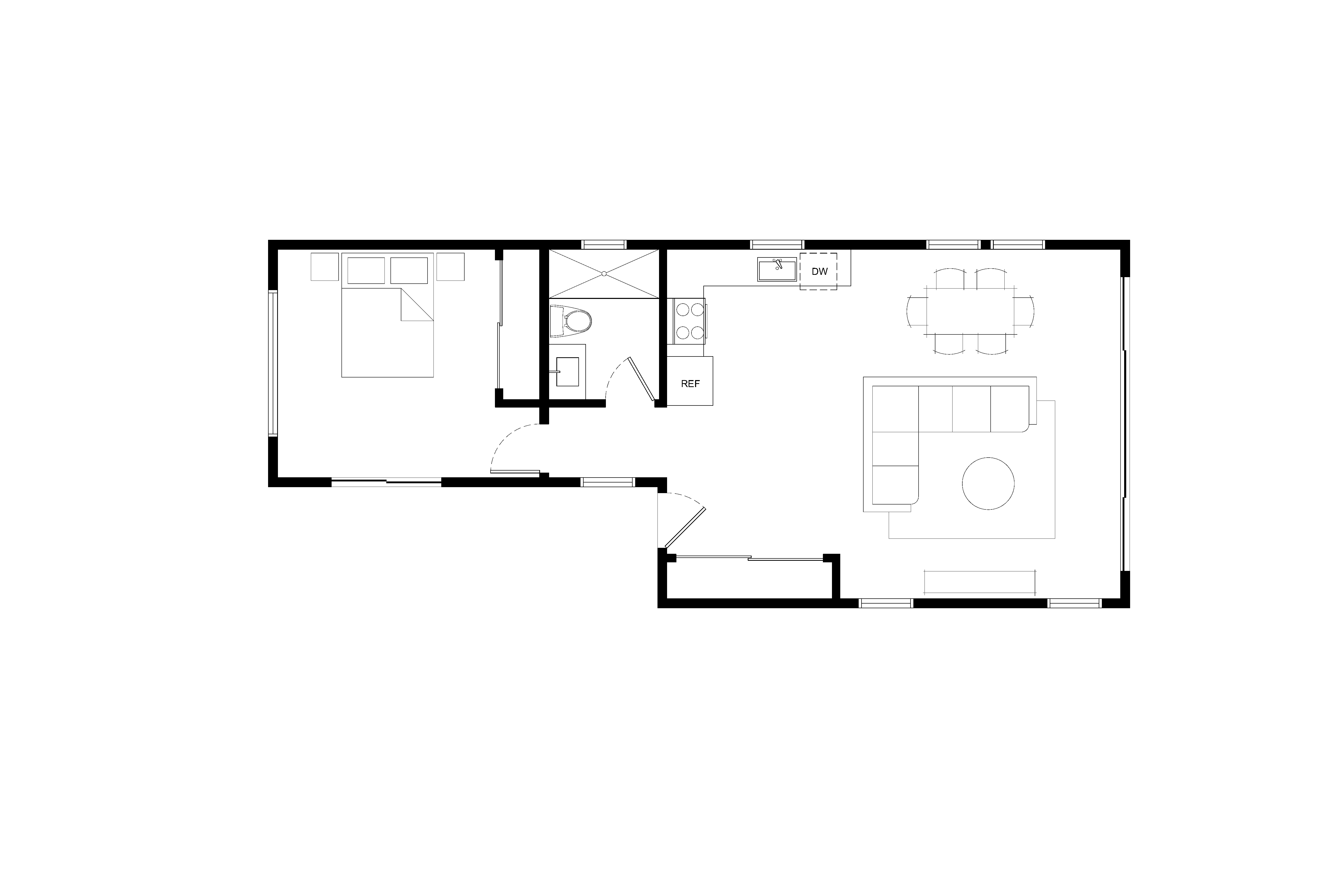
convert this floor plan into a minimalist isometric 3d view of a full house show the space from an elevated angle with furniture walls and details visible keep the layout same use the same furniture as shows on the plan do not change the orientation of the floorplan