archsynth
Sign Up
Open main menu
Image to 3d model
Compare
Testimonials
Contact us
Log in
→
Signup
Archsynth generation
Input image
Copy Prompt
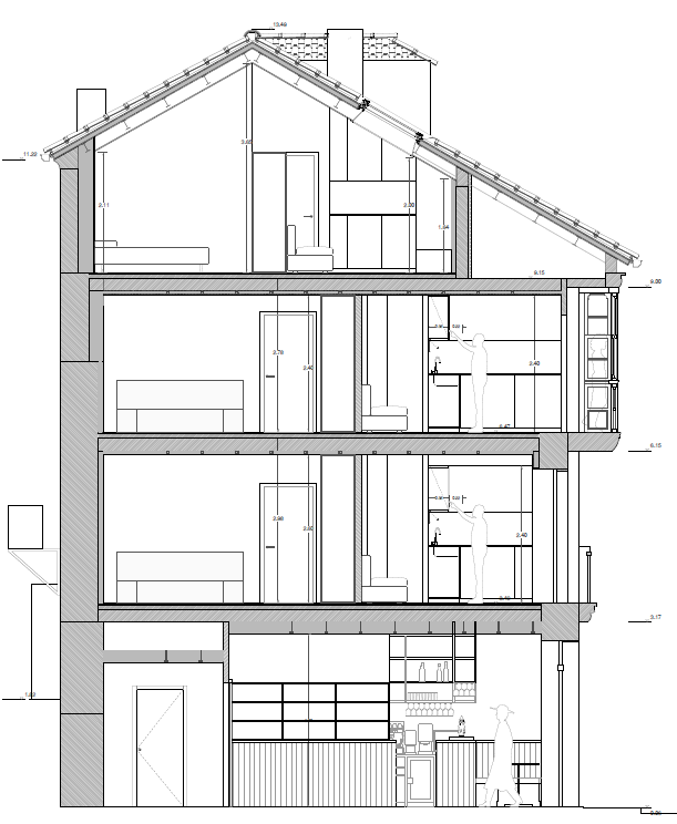
secci n de un edificio de viviendas en la planta baja hay un local destinado a bar las viviendas tienen en la primera planta unos balcones a la calle en la segunda planta una galer a gallega
Elevations
strength 75
seed 10
Start Creating Renders Now
Related Posts
Start Creating Renders Now
View more