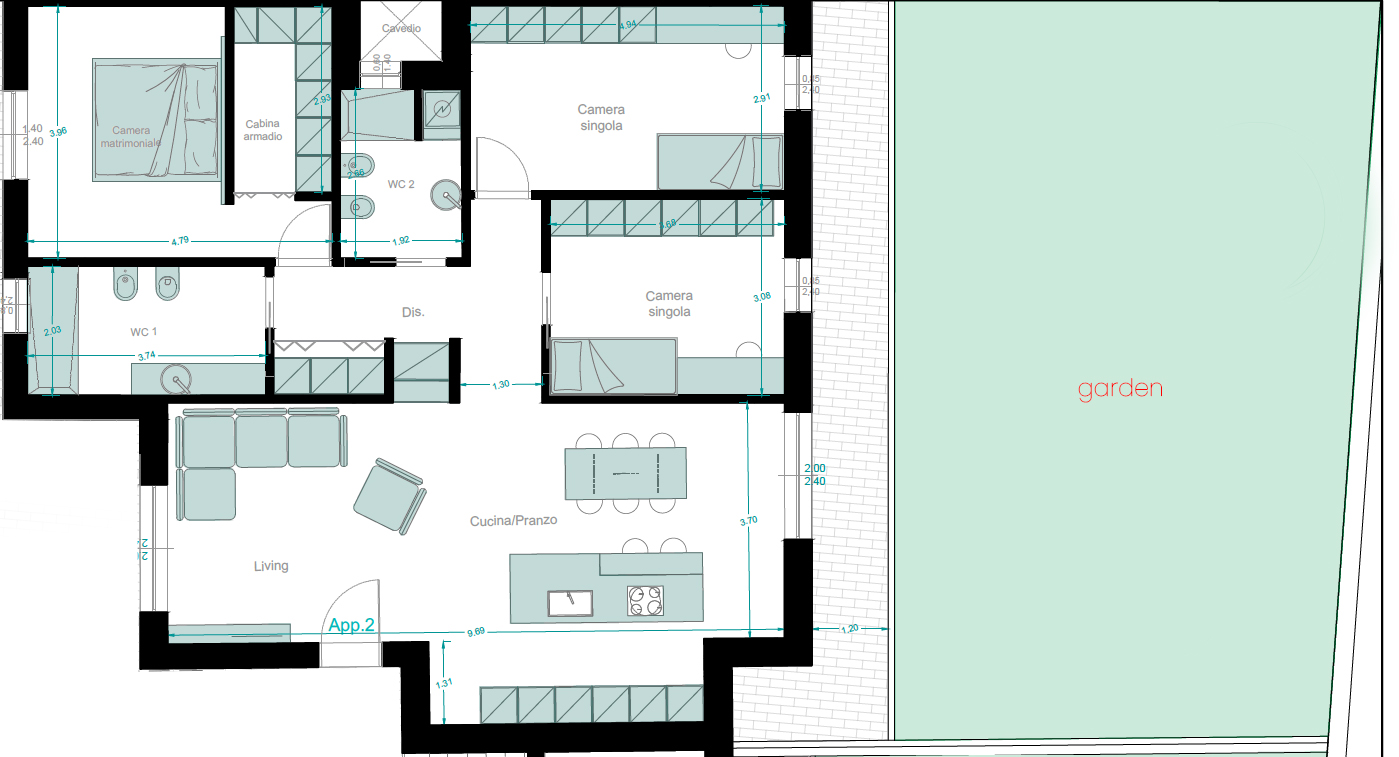
convert this floor plan into a realistic isometric 3d view of a full house show the space from an elevated angle with furniture walls and details visible render a modern vibrant apartment floor plan with a cozy and inviting atmosphere the walls of the apartment should be a soft ivory creating warmth the kitchen and dining area have sleek white cabinetry with a dark gray countertop complemented by stainless steel appliances the living room features a comfortable deep blue sectional sofa with teal and mustard throw pillows and a wooden coffee table with a natural finish bedrooms are serene with light sage walls and soft beige bedding use oak wood flooring throughout the apartment for a touch of elegance bathrooms should be modern with white tiles and brushed nickel fixtures the large garden outside is lush and vibrant filled with a variety of green plants and bright seasonal flowers soft natural lighting filters through large windows enhancing the sense of space and tranquility use the same furniture as shows on the plan do not change the orientation of the floorplan