archsynth
Sign Up
Open main menu
Image to 3d model
Compare
Testimonials
Contact us
Log in
→
Signup
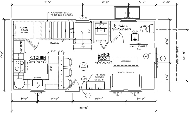
Archsynth generation
Input image
Copy Prompt
convert this floor plan into a realistic isometric 3d view of the house show the space from an elevated angle with furniture walls and details visible use the same furniture as shows on the plan
Maintain Colors (v2)
strength 75
seed 10
Start Creating Renders Now
Related Posts
Start Creating Renders Now
View more