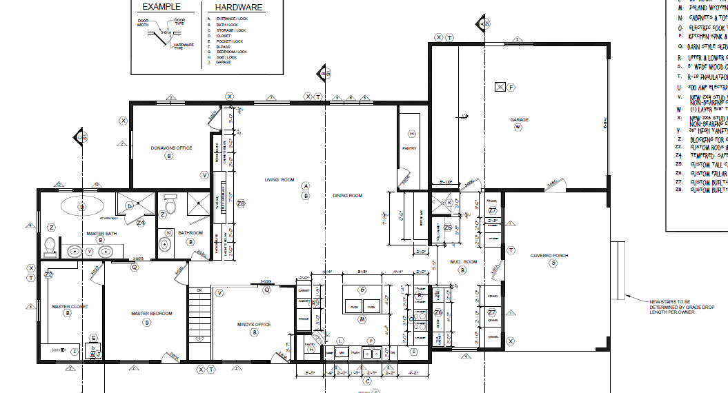
convert this 2d floor plan into a fully modeled 3d architectural floor plan maintain exact room dimensions wall thicknesses door swings and window placements shown on the plan create clean realistic 3d spatial geometry with correct ceiling heights proportional openings and structural elements extrude walls accurately from the plan generate slabs and add appropriate floor and ceiling materials include essential architectural details such as door frames skirting window trims and column placements keep the furniture layout functional and proportionate based on typical architectural standards use natural soft lighting and a neutral color palette to clearly visualize spatial relationships produce a professional architectural 3d visualization suitable for client presentations