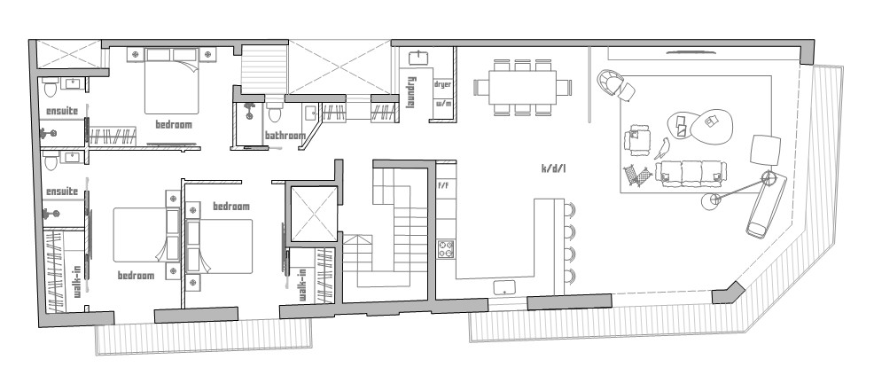
convert this floor plan into a realistic isometric 3d view of a full house show the space from an elevated angle with furniture walls and details visible a spacious modern apartment floor plan featuring three bedrooms and a large open plan living area the bedrooms are designed with soft blues and earthy tones to create a calming atmosphere natural light floods through large windows into the living room which is complemented by warm neutral colors such as beiges and creams to offer a cozy and inviting feel the kitchen area has sleek white cabinetry with stainless steel appliances highlighted by soft ambient lighting the dining area features a reclaimed wood table adding a touch of rustic charm surrounded by modern minimalist chairs the entire space has an open airy vibe with houseplants adding fresh greenery the atmosphere is tranquil yet stylish perfect for contemporary urban living use the same furniture as shows on the plan do not change the orientation of the floorplan