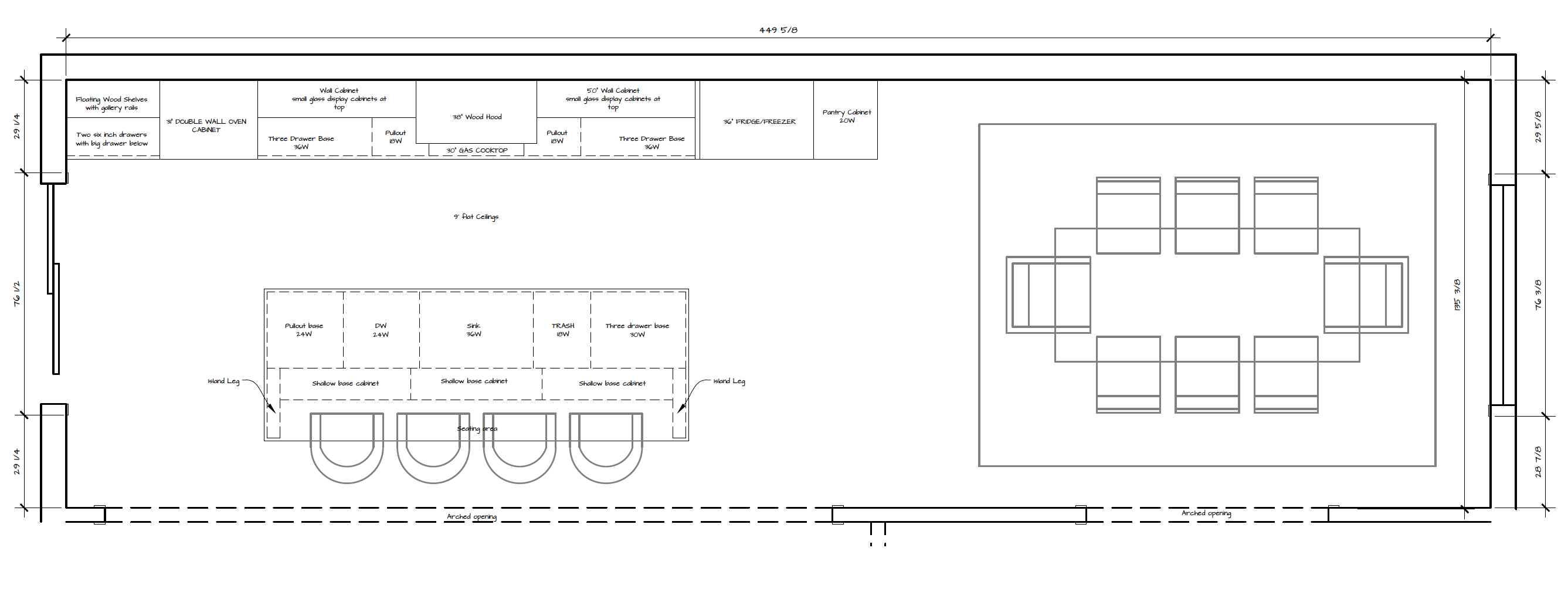
convert this floor plan into a realistic isometric 3d view of a full house show the space from an elevated angle with furniture walls and details visible make this isometric in the transitional style follow the layout notes provided in the floor plan the dining table will run the same direction as the island use the same furniture as shows on the plan do not change the orientation of the floorplan