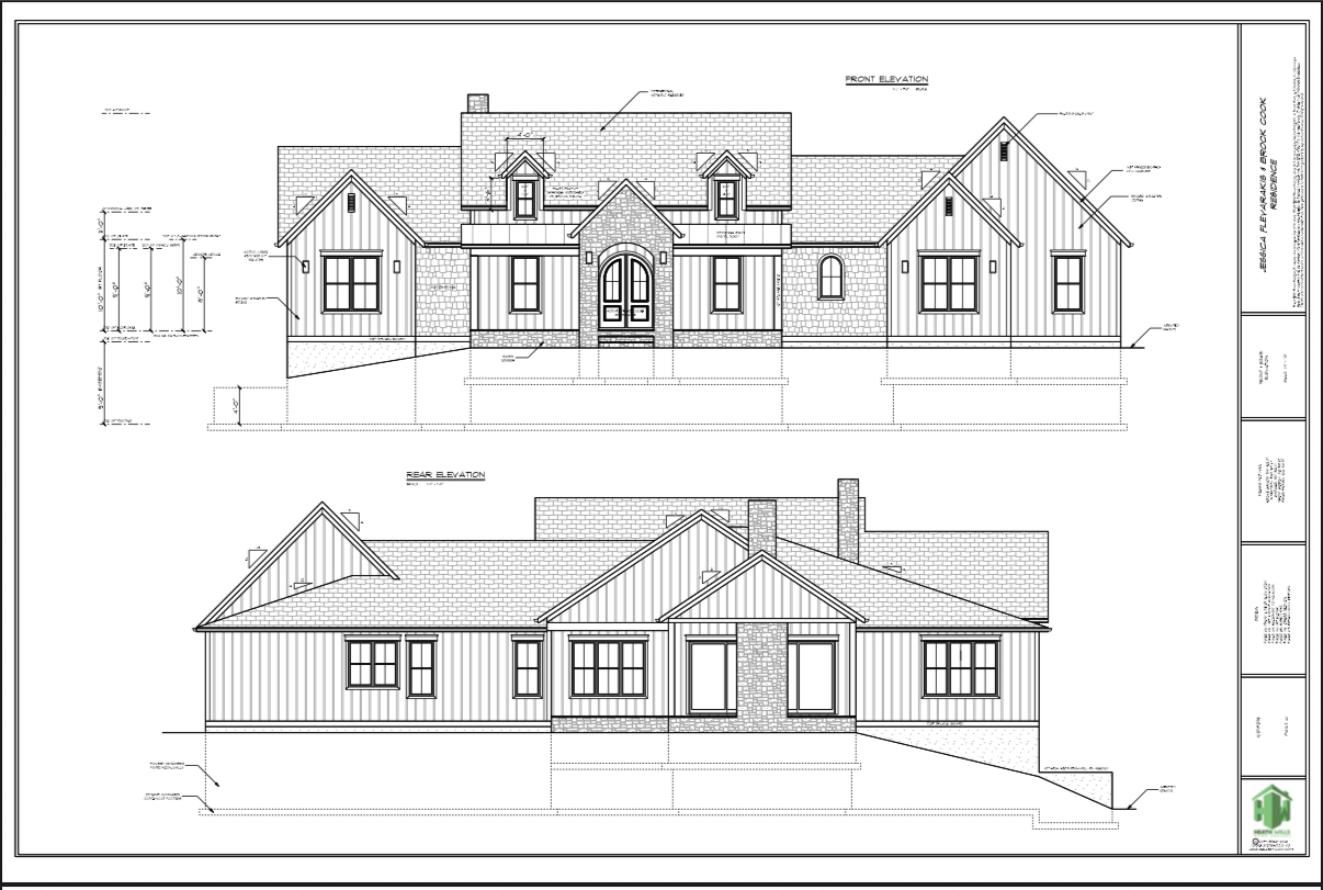
edit windows in the front on porch so they re double on each side instead of single i also want a white or creamy brick color with some board and batten probs more brick than board and batten roof on porch and dormers will be metal but only those areas