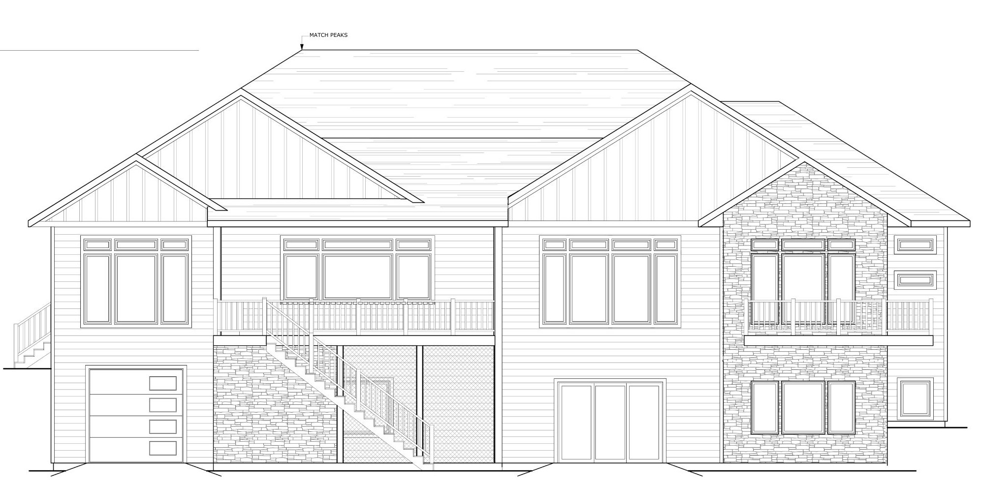
exterior shot please apply the finishes and styling from the attached inspiration photo to this front elevation specifically use shoji white as the primary siding color similar to the creamy white in the inspo match the stonework style color and mortar to the inspiration el dorado tundrabrick latigo with heavy white overgrout style the front door in a warm wood tone like the inspiration mine is thermatru classic oak acorn use a weathered wood shingle style roof tamko titan xt weathered wood add light colored gutters linen tone garage doors horizontal panel look stained wood appearance haas ash wood stain design goal soft warm classic curb appeal like the inspiration image applied to this layout architecture