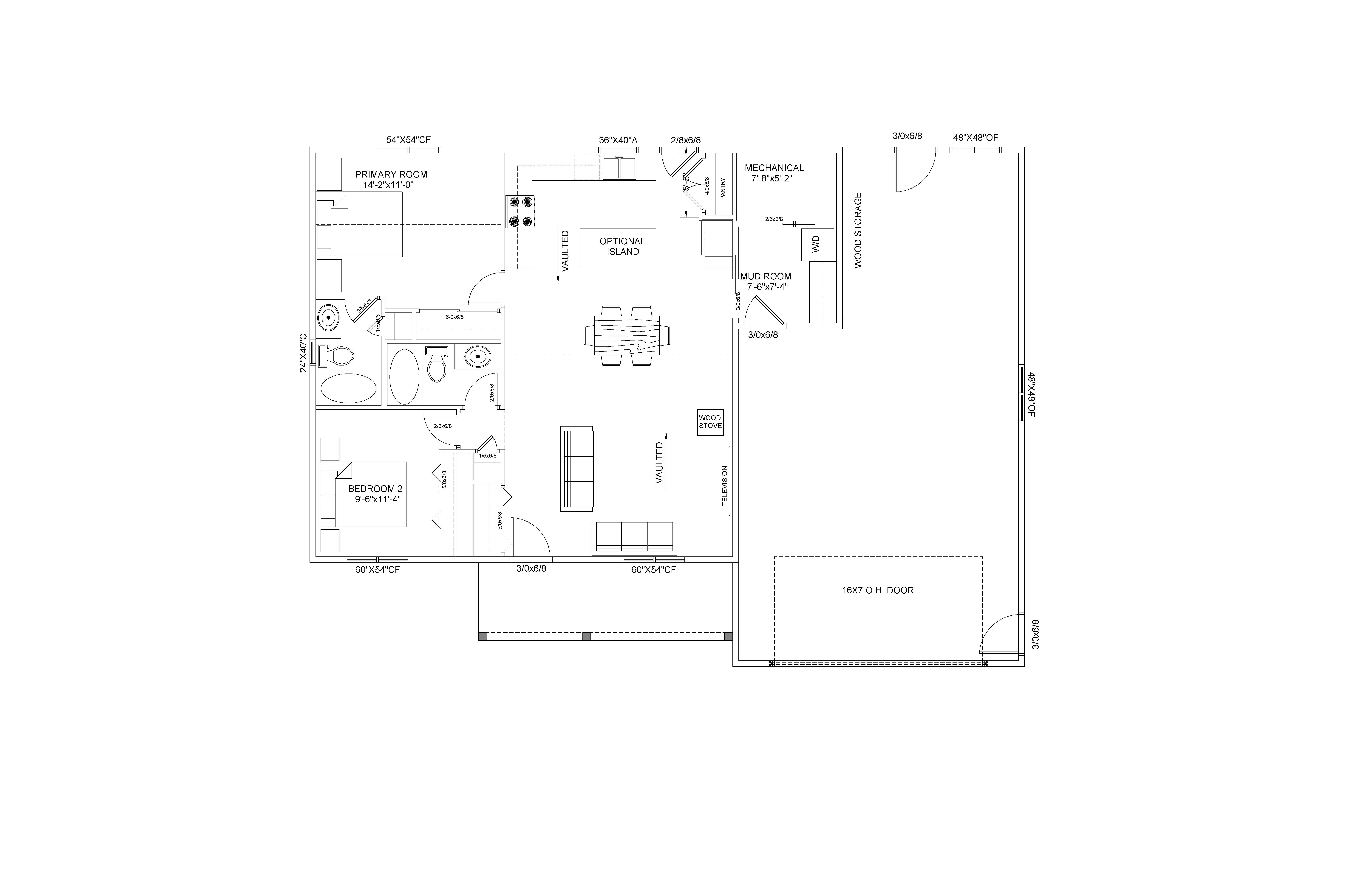
convert this floor plan into a realistic isometric 3d view of a full house show the space from an elevated angle with furniture walls and details visible use this floor plan and generate a modern farm house rendering black exterior siding do not show any part of the roof use the same furniture as shows on the plan do not change the orientation of the floorplan