archsynth
Sign Up
Open main menu
Image to 3d model
Compare
Testimonials
Contact us
Log in
→
Signup
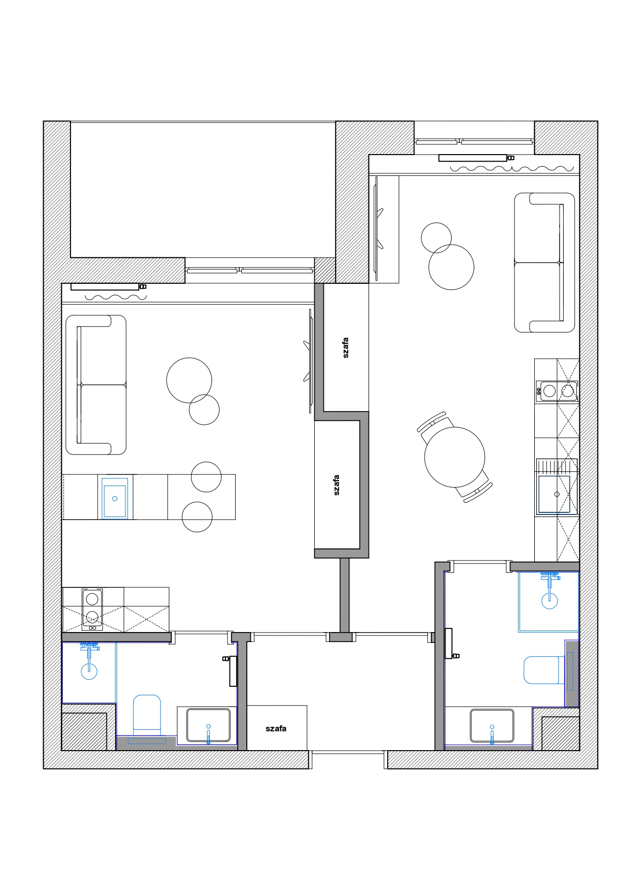
Archsynth generation
Input image
Copy Prompt
giuseppe terragni interior from the top architecture
by Architect
strength 75
seed 4658
Start Creating Renders Now
Related Posts
Start Creating Renders Now
View more