archsynth
Sign Up
Open main menu
Image to 3d model
Compare
Testimonials
Contact us
Log in
→
Signup
Archsynth generation
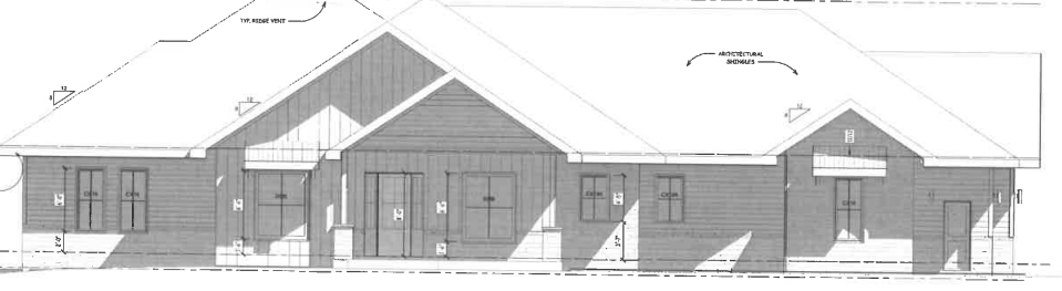
Input image
Mood Board
Copy Prompt
exterior shot
Mood Board
strength 75
seed 351
Start Creating Renders Now
Related Posts
Start Creating Renders Now
View more