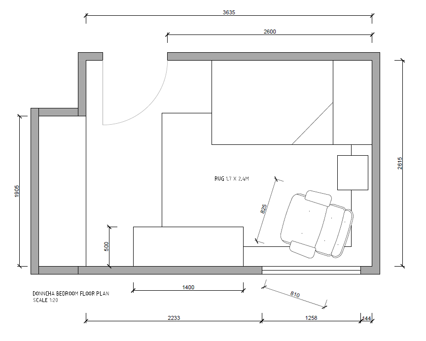
create a room view using the attached floor plan and measurements north wall 3635mm with an entry to the room door on the left east wall 2615 mm south wall with a window on it and west wall with 1905mm niche for built in robe put a king single size bed 2170 mm long and 1140 wide with charcoal boxed bedhead charcoal sheets and navy pinstripe duvet cover to the corner of the room long side along the north wall bedhead in the corner of the north east walls add a round bedside table next to it 450 dia walnut top and gunmetal base grand designs asher side table 1pcs gunmetal walnut on the opposite south wall place a togo lazy caterpillar lounge chair in tan leather with a smaler side table with walnut top and gunmetal base 350mm dia next to it place a drexel dome floor lamp behind the chair with aluminium base and clear glass shade 1300 mm height all walls and ceiling are painted in dulux opononi double