archsynth
Sign Up
Open main menu
Image to 3d model
Compare
Testimonials
Contact us
Log in
→
Signup
Archsynth generation
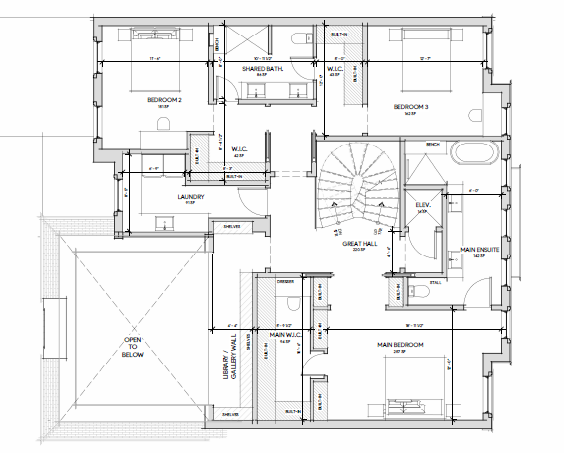
Input image
Copy Prompt
add bedroom and in suite bath in place of the open to below remove catwalk and incorporate the square footage in the master bedroom
Remix
strength 75
seed 10
Start Creating Renders Now
Related Posts
Start Creating Renders Now
View more