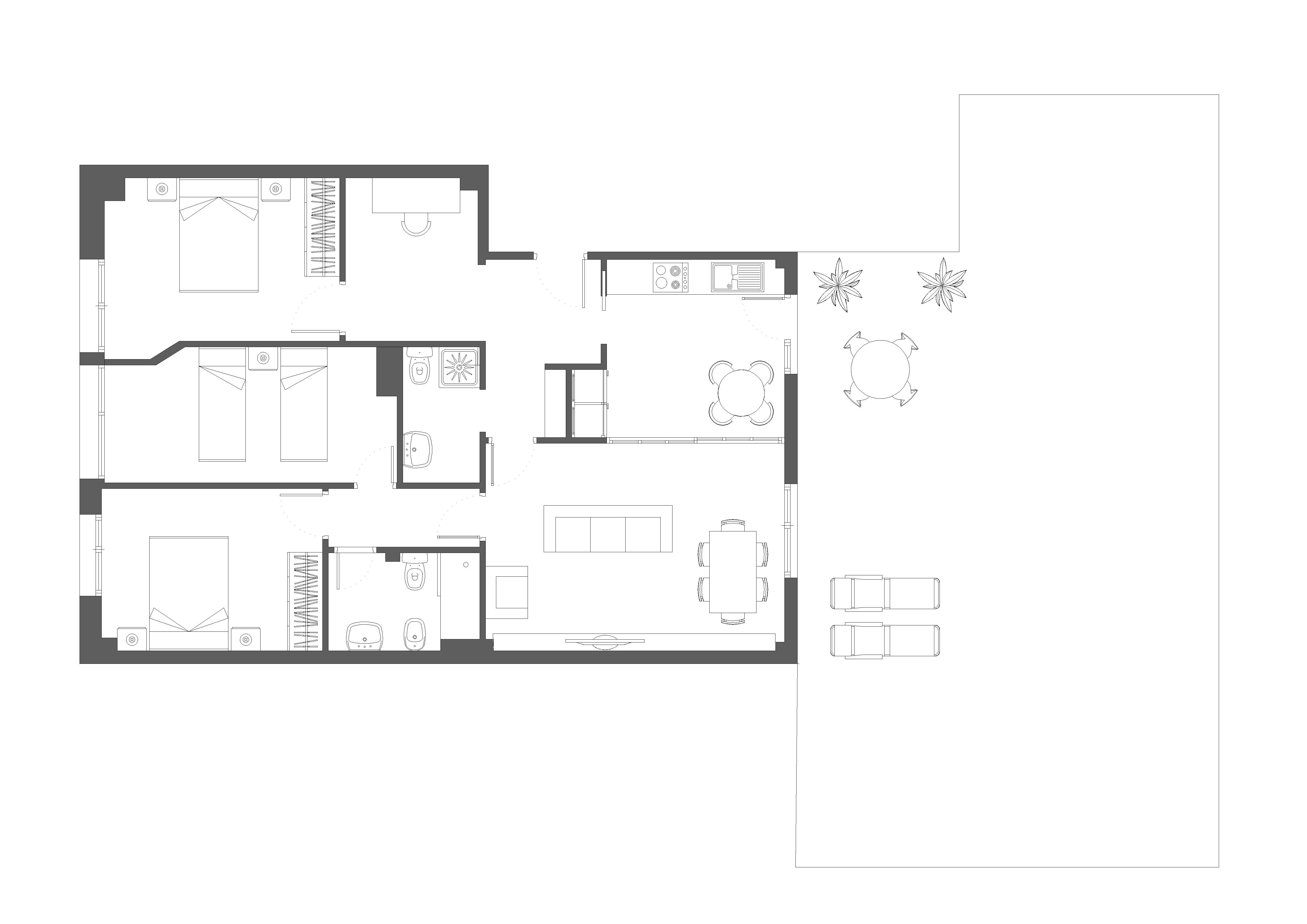
convert this floor plan into a realistic isometric 3d view of a full house show the space from an elevated angle with furniture walls and details visible convierte esta vista 2d en un render 3d realista utilizando los mismos muebles y no modificando el modelo original mantener tambien las puertas y ventanas del modelo actual use the same furniture as shows on the plan do not change the orientation of the floorplan