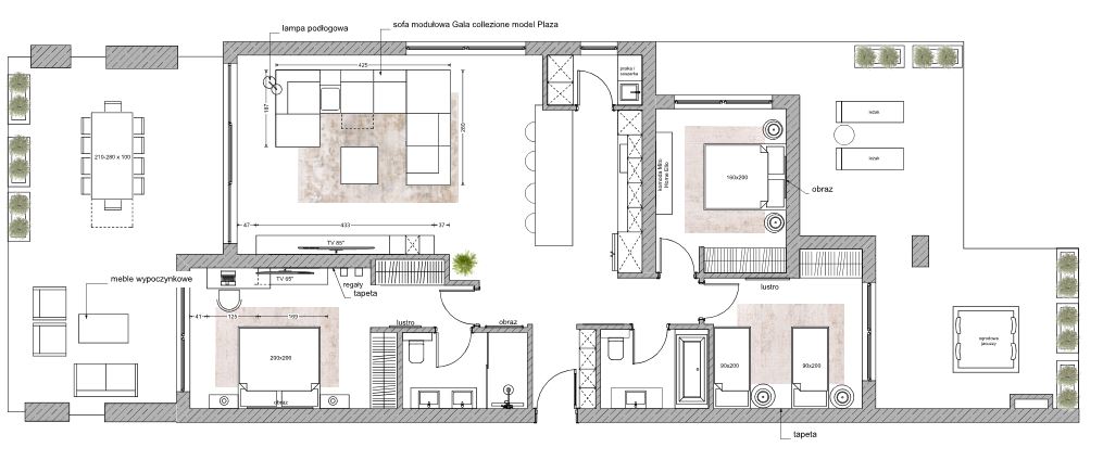
convert this floor plan into a modern isometric 3d view of a full house show the space from an elevated angle with furniture walls and details visible pod oga jasne szare p ytki 100x100 cm ciany bia e meble bia e kanapa szara use the same furniture as shows on the plan do not change the orientation of the floorplan