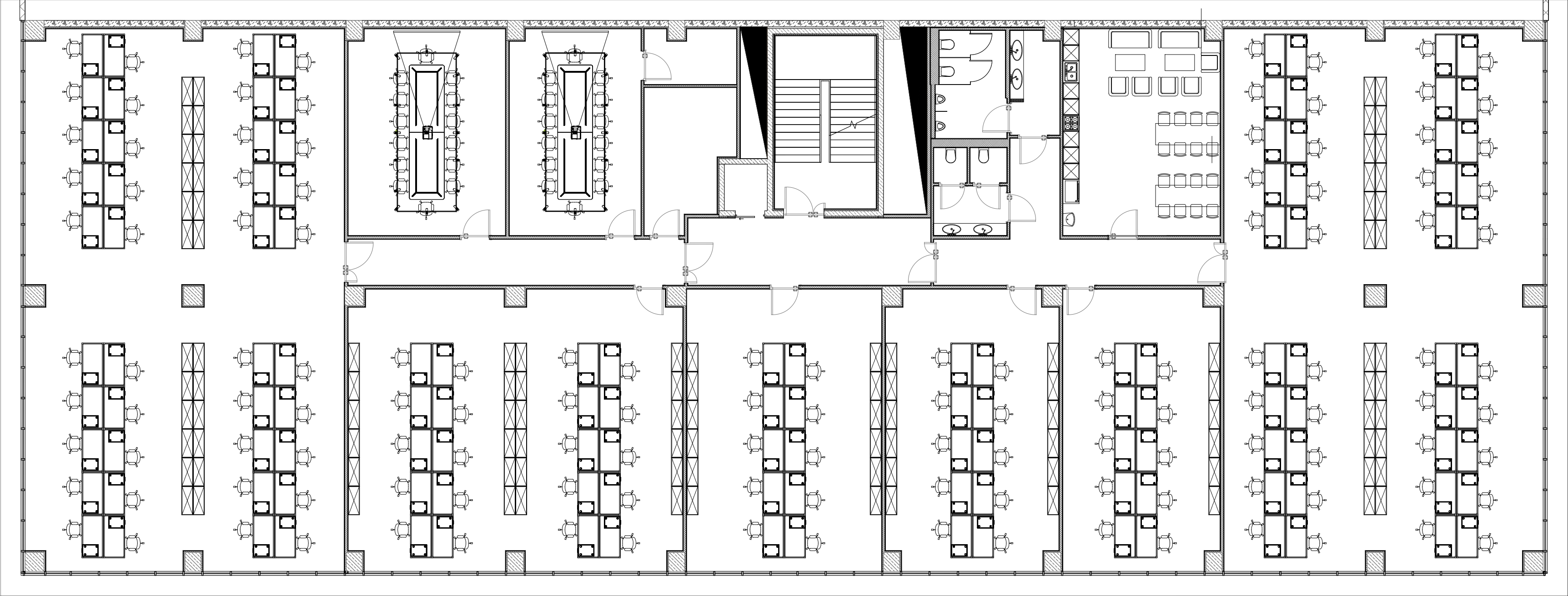
convert this floor plan into a realistic isometric 3d view of a office show the space from an elevated angle with furniture walls and details visible modern furniture colors beige and gray modern warm lighting add interior greenery elements use the same furniture as shows on the plan do not change the orientation of the floorplan