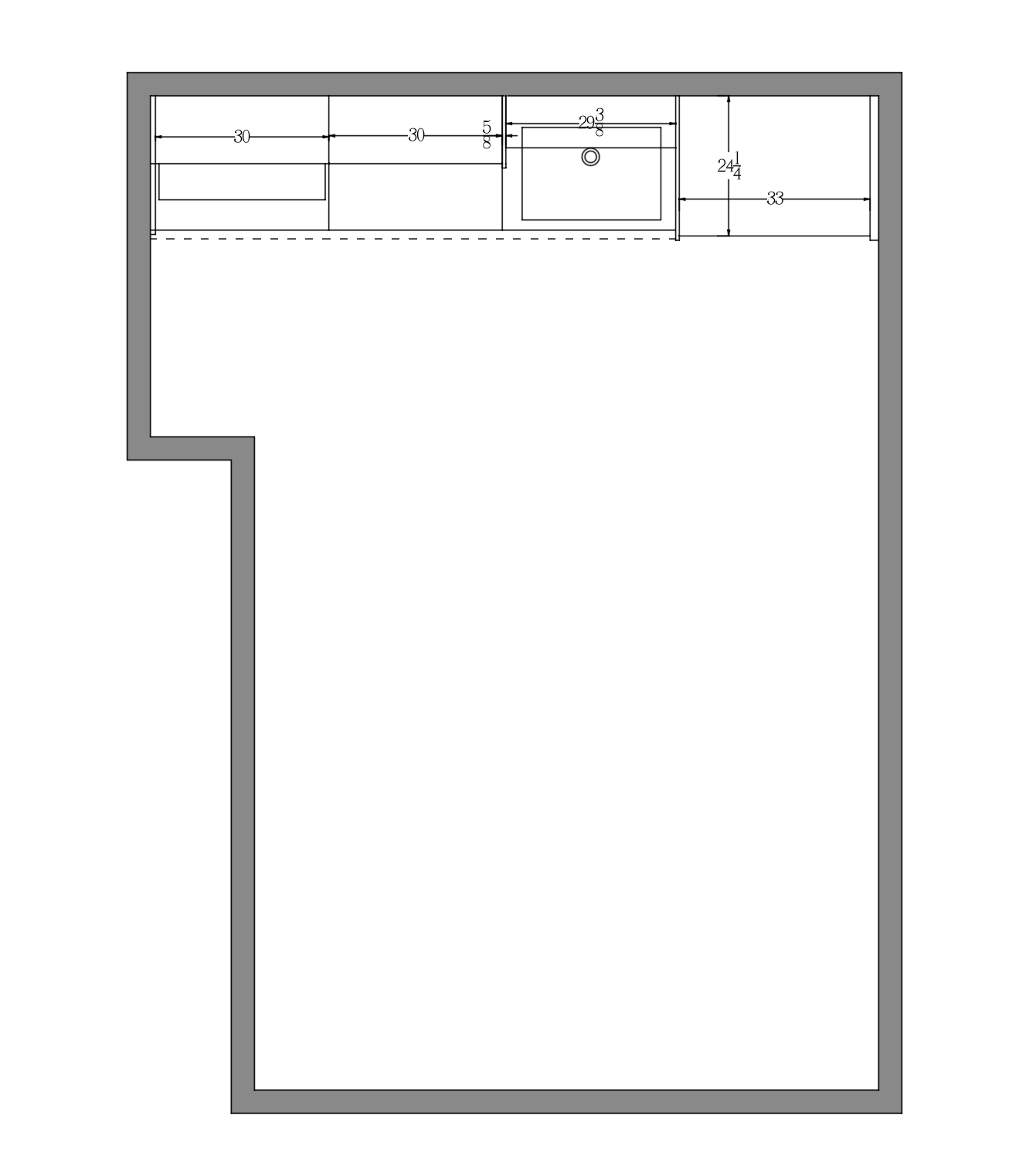
convert this floor plan into a realistic isometric 3d view of a kitchen show the space from an elevated angle with furniture walls and details visible kitchenette with a fridge on the right and a microwave on the left use the same furniture as shows on the plan do not change the orientation of the floorplan