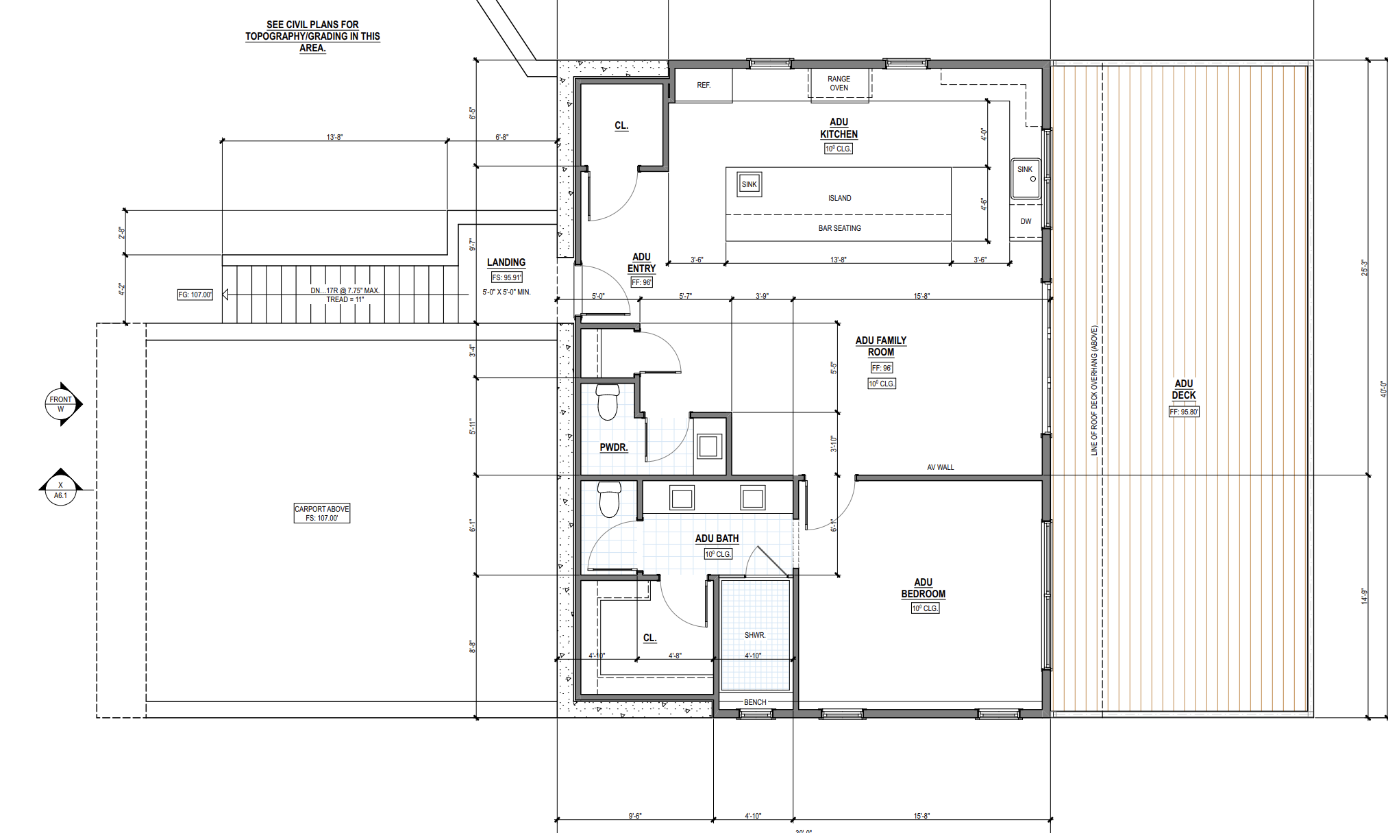
convert this floor plan into a realistic isometric 3d view of a adu show the space from an elevated angle with furniture walls and details visible this is a first floor adu ignore the dimensions and dimensions lines tags viewports revision clouds don t keep the room names add residence furniture and environment render from the center and then way to the exterior walls turns to drawing bending it very seamlessly it http seamlessly it s a one floor commercial building so no stairs don t add people just furniture try to make the rooms based on the room name and fixtures use the same furniture as shows on the plan do not change the orientation of the floorplan also mantain walls traight never curved and at the carport above there is nothing