archsynth
Sign Up
Open main menu
Image to 3d model
Compare
Testimonials
Contact us
Log in
→
Signup
Archsynth generation
Input image
Copy Prompt
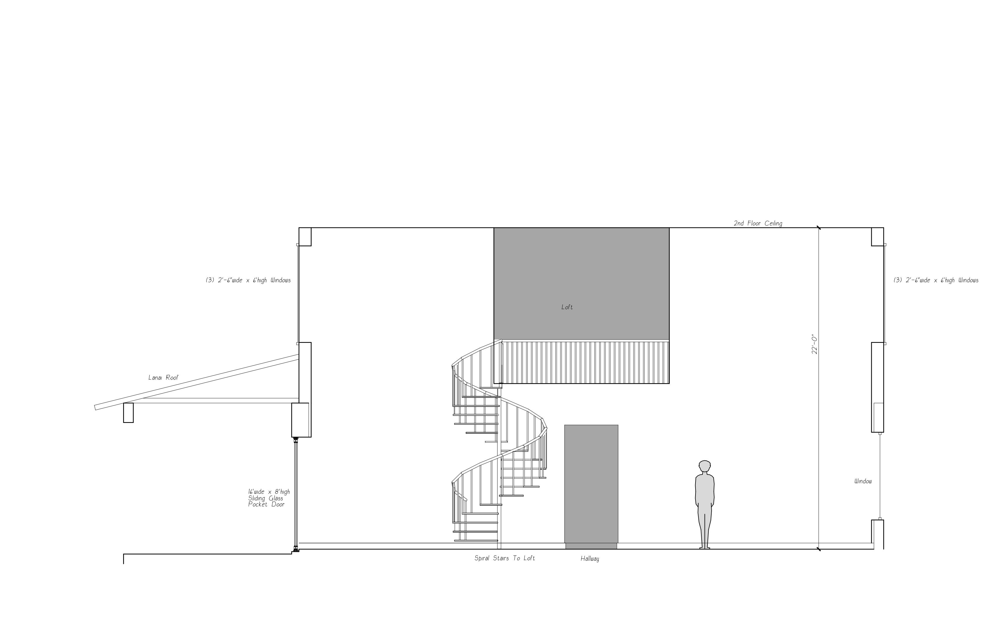
interior room wall elevation with 14 deep recessed loft 14 deep recessed hallway solid white walls each side of hallway solid white walls each side of loft
Elevations
strength 100
seed 10
Start Creating Renders Now
Related Posts
Start Creating Renders Now
View more