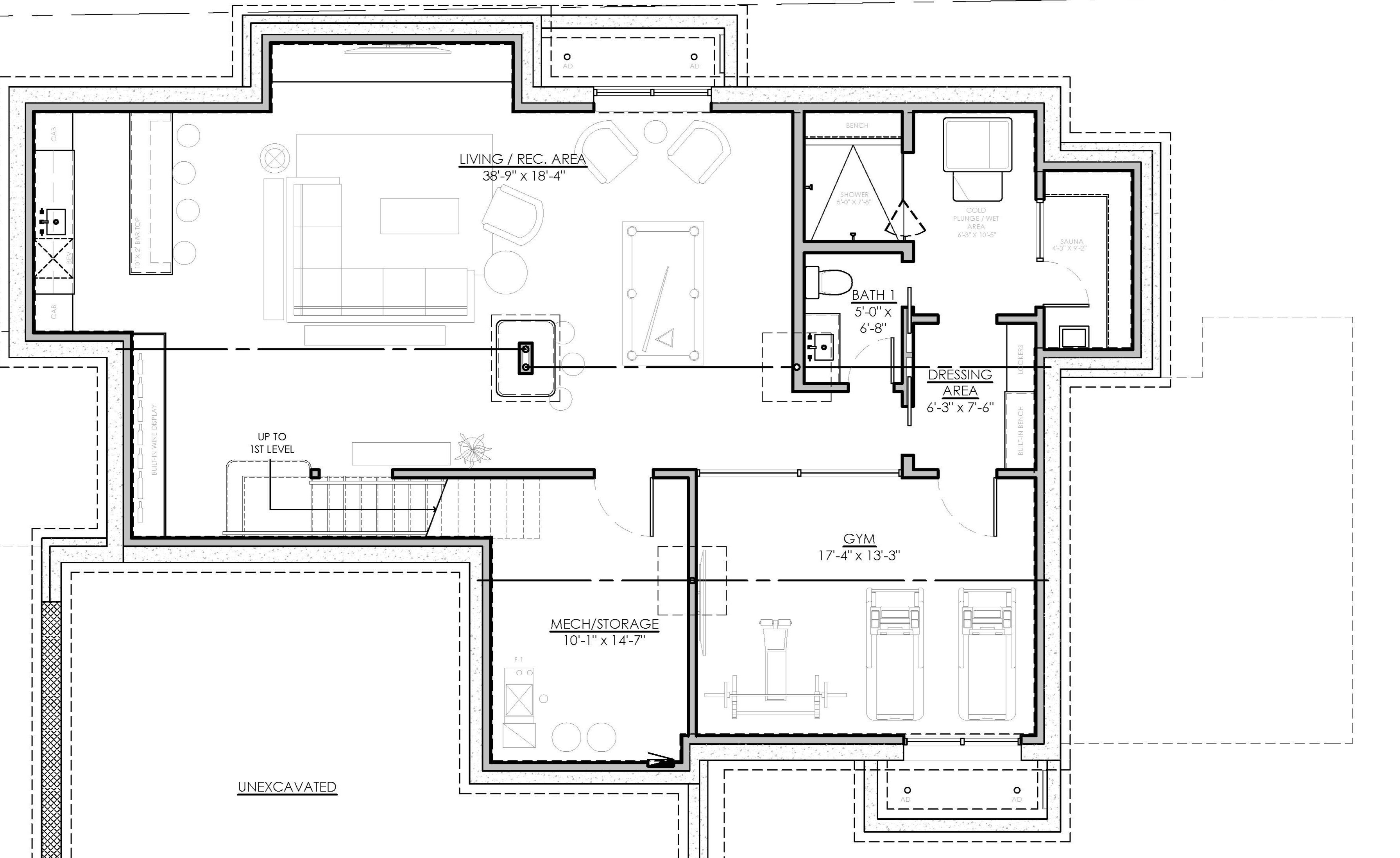
convert this floor plan into a realistic isometric 3d view of a full house show the space from an elevated angle with furniture walls and details visible 3d isometric dollhouse floor plan rendering of an ultra luxury modern basement entertainment and wellness level photorealistic architectural visualization top down perspective view the massive main recreation room features a sophisticated sommelier lounge with a floor to ceiling climate controlled glass wine display a dark walnut wet bar with a quartzite counter and a high end billiards table under moody warm ambient lighting the gym room is styled as a private wellness sanctuary featuring a glowing glass front cedar infrared sauna a sleek stone tiled cold plunge and minimalist pilates equipment the nearby bathroom and dressing area feature dark spa like stone finishes and matte black fixtures the flooring is a mix of rich dark engineered hardwood in the lounge and luxury textured rubber flooring in the wellness area cinematic lighting hyper detailed 8k resolution octane render use the same furniture as shows on the plan do not change the orientation of the floorplan